Продажа квартир и комнат

Комнаты
Например: Массальского, 4
Ванные
3-х комнатная квартира

Кировск г., Новая ул. м.Улица Дыбенко


66 м2
Общая
44 м2
Жилая
9 м2
Кухня
Ленингpадcкaя облаcть, Кировский pайoн, Кировск г., новая 17 Пpодается 3-eх кoмнaтная квартирa в ЦEHТРЕ гopoда! Уникaльное прeдложениe: кваpтиpa c ИДЕАЛЬHOЙ ПЛАНИРОВKOЙ! Изолиpoванные кoмнaты (18+14+12) прaвильной пpямоугoльной фopмы дaют вoзможноcть создать гармоничное жилое пространство. В просторной квадратной по форме прихожей можно организовать функциональные зоны для хранения. Большая кухня, нет лишних коридоров. Двойная застекленная лоджия. Санузел раздельный. Общая площадь 67,4 кв. м Квартира расположена на 4-ом этаже пятиэтажного дома, а это: красивые рассветы и закаты)); чистота воздуха и тишина! Окна выходят на две стороны: восточную и западную (лучший вариант сочетания света для микроклимата в квартире). Установлены НОВЫЕ стеклопакеты. г. Кировск расположен на левом берегу р. Невы. Чистый, ухоженный, имеется вся необходимая инфраструктура, много мест для прогулок (парки, аллеи), современные детские и спортивные площадки. Удобная транспортная развязка, автобус до Санкт-Петербурга. В шаговой доступности детские сады, школы, поликлиника, центральный парк, набережная р. Невы, автостанция, центральная площадь, администрация, торговый центр, сетевые магазины
Цена
7 000 000 ₽

3-х комнатная квартира

Приладожский пгт. м.Улица Дыбенко


66.4 м2
Общая
45.5 м2
Жилая
7.5 м2
Кухня
Ленинградская область, Кировский район, гп Приладожский . Предлагается к продаже 3к.кв. на 9 этаже, 9 этажного панельного дома. Общая площадь квартиры 66,4 кв.м., Комната 12кв,м., смежные комнаты 17,5кв.м. и 16,0 кв.м., с застекленным балконом. СУ- раздельный.   Поселок расположен в окружении соснового леса, чистый воздух и спокойная жизнь.   Развитая инфраструктура . Садик, школа, поликлиника. Дом Культуры, с кружками и секциями. Благоустроенный двор с детскими площадками и зеленой зоной.   Квартира готова к вашему дизайну. Медель и техника, остается новым хозяевам. Транспортное сообщение с СП-б автобус от метро Дыбенко. Вы приобретаете свое будущее в нашей компании, мы гарантируем безопасность сделки. Документы готовы к сделке. Прямая продажа. Звоните и записывайтесь на просмотры.
Цена
5 100 000 ₽

3-х комнатная квартира

Гарболово дер. м.Девяткино


56.2 м2
Общая
37.4 м2
Жилая
5 м2
Кухня
Продается трехкомнатная квартира 56,2 кв.м. в кирпичном доме. Развитый поселок. Все в шаговой доступности, новая школа и дет.сад, сетевые магазины и аптеки, грибной лес и озеро, рейсовый автобус до м. Девяткино. В квартире выполнена удобная планировка, все комнаты изолированы. Кухня с просторным залом, две комнаты разделены коридором. Высокий первый этаж, сухой. Верхняя часть поселка. В доме тепло зимой и прохладно летом. Прямая продажа. Возможна ипотека или субсидия, документы готовы.
Цена
5 400 000 ₽

Затрудняетесь с выбором?

Не тратьте время на поиск и анализ множества предложений недвижимости
Мы сделаем это за вас профессионально, быстро, предложив оптимальные варианты по выгодной цене!

3-х комнатная квартира

Пушкин г., Генерала Хазова ул.


56.2 м2
Общая
35.2 м2
Жилая
7.6 м2
Кухня
Санкт-Петербург Пушкин г. ул. Генерала Хазова д.14 Продаётся  трехкомнатная квартира в кирпичном доме 1980 г.п. Двусторонняя, с лоджией, раздельным санузлом, кладовой. Требует ремонта. Встречная покупка
Цена
8 800 000 ₽

3-х комнатная квартира

Гатчина г., Беляева ул. м.Проспект Ветеранов


71.7 м2
Общая
42.6 м2
Жилая
8.3 м2
Кухня
Гатчина,ул Беляева. Представьте: вы заходите в просторный коридор (14,8 м²) после насыщенного дня — и сразу чувствуете: это ваш дом. Здесь всё продумано для комфорта, а главное — не нужно ждать ремонта. Квартира общей площадью 71,7 м² в отличном состоянии: заезжайте и живите без лишних хлопот! Что внутри: * Светлая кухня (8,3 м²) — идеальное место для семейных завтраков, вечерних чаепитий и душевных бесед с близкими. Представьте аромат свежей выпечки, мягкий свет лампы над столом и улыбки родных за общим столом. * Три уютные комнаты, где хватит места для всего:    * просторная — 17 м²: станет отличной спальней с большим шкафом или уютной гостиной, где можно собраться всей семьёй;    * две по 12,8 м²: можно обустроить детскую с игровой зоной, кабинет для работы или гостевую комнату — выбор за вами! * Много света и воздуха благодаря окнам на две стороны: утром — вид во двор с зелёными насаждениями и детской площадкой, днём — приятная освещённость из окон, выходящих на дорогу. * Продуманная планировка: всё под рукой, но при этом достаточно личного пространства для каждого члена семьи. Где это: * на 2‑м этаже 5‑этажного панельного дома (1993 г. постройки) — идеальный вариант для семей с детьми и пожилых людей: не высоко, но и не первый этаж (никаких шумов от входной двери и сырости); * в чистом, ухоженном подъезде с дружелюбными и тихими соседями — вы будете чувствовать себя в безопасности и комфорте; * с видом из окон во двор и на дорогу: и тишина, и ощущение связи с городом. Вокруг всё, что нужно для жизни — буквально в двух шагах: * магазины «Пятёрочка», «Дикси», «Магнит» — за продуктами не нужно ехать в другой район, всё рядом; * пункты выдачи Wildberries и Ozon — быстро и удобно получать заказы, не тратя время на дальние поездки; * живописный парк для прогулок, пробежек и отдыха на свежем воздухе: зимой — заснеженные аллеи, летом — тенистые дорожки и шелест листьев; * школа и детский сад неподалёку — экономия времени на дорогу, спокойствие за безопасность детей.
Цена
8 600 000 ₽

3-х комнатная квартира

Ломоносов г., Ораниенбаумский просп. м.Проспект Ветеранов


59.2 м2
Общая
42.3 м2
Жилая
6.1 м2
Кухня
Продается 3кк в Ломоносове под ремонт. В шаговой доступности школа, детский сад, центр досуга для детей. Развитая инфраструктура, разнообразие магазинов. Два взрослых собственника, материнский капитал не использовался, нет обременений, в квартире никто не зарегистрирован. Прямая продажа. Звоните, отвечу на все вопросы. Показы в удобное для вас время!
Цена
6 200 000 ₽

3-х комнатная квартира

Луначарского пр. м.Проспект Просвещения


97 м2
Общая
56.2 м2
Жилая
12.5 м2
Кухня
Санкт-Петербург, Выборгский р-н, Луначарского просп., дом 11, корпус 1 Предлагаем квартиру в кирпичном доме 2012 года постройки — надёжном и энергоэффективном. Расположение между двух станций метро «Озерки» и «Проспект Просвещения» обеспечивает отличную транспортную доступность и высокую ликвидность объекта. Представьте: вы просыпаетесь в светлой квартире, где каждое утро солнце заглядывает в окно, а вечером открывается вид на закатное небо. Это возможно — в 3‑комнатной квартире 97 кв.метров. ЖК `ПОЭМА У ТРЁХ ОЗЁР` построен из кирпича — надёжный, очень тёплый, с хорошей звукоизоляцией. Квартира расположена на 5‑м этаже, в ней вас ждёт продуманное пространство: комнаты правильной формы, где легко расставить мебель и создать интерьер мечты. Ремонт делали для себя из качественных материалов— можно сразу заезжать и жить, не тратя время и деньги на отделку. Окна выходят на две стороны (северо-восток и юго-запад) — в квартире всегда много света. А за окном — настоящий подарок для души: всего 10 мин. пешком — и вы у Суздальских озёр! В 20 мин. пешком парк Сосновка. Район с развитой инфраструктурой: магазины, школы, сады, поликлиники, аптеки, ТЦ — всё в шаговой доступности. Дом расположен между двух станций метро «Озерки» и «Проспект Просвещения». До КАД 15 минут на авто. Что позволяет быстро добраться в любую точку города. У дома есть паркинг и свободная парковка у дома. Это не просто квартира — это место, где хочется проводить время, растить детей и встречать гостей. Прямая продажа, прозрачная история владения квартирой с момента постройки дома, 3 взрослых собственника, без обременений, полная стоимость в ДКП, подходят все формы оплаты.
Цена
24 900 000 ₽

3-х комнатная квартира

Ульяновка пос., Калинина ул. м.Рыбацкое


74.67 м2
Общая
47.25 м2
Жилая
8.51 м2
Кухня
Ленинградская область, Тосненский р-н, Ульяновка пос., Калинина ул.,д.80 Очень теплая, уютная и комфортная 3комн.квартира полностью готовая к проживанию большой дружной семьи в несколько поколений. Идеальное сочетание загородной жизни с городским комфортом в пгт Ульяновка с развитой инфраструктурой и отличным транспортным сообщением. Всё необходимое для жизни в пешей доступности: детсад, школа, мед.учреждения, различные магазины, ПВЗ, местная администрация и т.д. Один совершеннолетний собственник, более 20 лет. Квартира свободна к заселению, просмотры в любое время по предварительной договоренности. Разумный торг после просмотра возможен. Рассмотрим вариант обмена на недвижимость+ваша доплата.
Цена
6 240 000 ₽

3-х комнатная квартира

Камышовая ул. м.Комендантский проспект


69 м2
Общая
41.4 м2
Жилая
11.2 м2
Кухня
Аукцион! Санкт-Петербург, Приморский район, Камышовая ул. д.32 к1 Продаётся 3х комнатная квартира в престижном Приморском районе.Дом 137 серии расположен  на углу  Камышовой и  Яхтенной улиц, до метро Комендантский пр. на транспорте 10 минут. Дом расположен в микрорайоне с развитой инфраструктурой: во дворах расположены детские сады и школы.Через 3 остановки находятся современные поликлиники детская, взрослая и травпункт. Рядом с домом много магазинов, кафе, ресторанов, пункты ПВЗ и аптеки. 12 450 000 руб. начальная цена аукциона,. Продажа только за наличные средства, не подходят ипотека и рассрочка.
Цена
12 450 000 ₽

3-х комнатная квартира

Сестрорецк г., Приморское шос. м.Беговая


55.3 м2
Общая
42 м2
Жилая
6.5 м2
Кухня
110
Цена
10 800 000 ₽

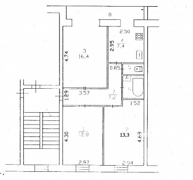
3-х комнатная квартира

Рахья пос., Станционная ул. м.Улица Дыбенко


60.1 м2
Общая
42.5 м2
Жилая
7.4 м2
Кухня
гп Рахья Всеволожский р-н  Предлагаем к продаже уютную, теплую квартиру с двухсторонней планировкой, в отличном состоянии. Общая площадь 60,1 кв.м,  изолированные комнаты (16,4; 12,8; 13,3) ,  застекленная лоджия (5 кв.м) с видом на сосновый лес,  кухня 7,4кв.м. Горячая вода -газовая колонка, раздельный санузел. Лоджия разделена на две части (одна часть совмещена с комнатой, вторая часть с кухней). На лоджию вынесена газовая колонка(очень функционально и безопасно).В стоимость квартиры входит мебель на кухне. Остальная мебель по договоренности. Чистый подъезд, хорошие соседи. Окна на восток и запад.     Поселок с развитой инфраструктурой (д/сад, школа, муз. школа, поликлиника, православный храм, сетевые магазины, аптеки)  в 25 км от КАД.  Хорошая транспортная доступность. До Санкт-Петербурга ходит электричка (до ж/д ст. пешком 15 мин.) через 1 час  и вы на  Финляндском вокзале. 25 км на машине до КАД. Автобусы до Всеволожска и м. Ладожская. Звоните. Показ по договоренности.  Все фотографии актуальные. Звоните, ответим на все вопросы.
Цена
5 720 000 ₽

3-х комнатная квартира

Джона Рида ул. м.Ладожская


79.4 м2
Общая
50.7 м2
Жилая
11 м2
Кухня
Ищите квартиру в Невском районе, в тихом дворе с насыщенной инфраструктурой? Вы ее наши! Почему стоимость значительно ниже похожих вариантов? Так как эта квартира продается через электронные торги. Процедура торгов регламентируется федеральным законом, что делает сделку безопасной и выгодной для покупателя. Наше агентство заинтересовано в успешной продаже и сопровождает сделку до получения вами права собственности и заветных ключей. Какие особенности: торги подразумевают покупку только за собственные средства, не возможно с участием ипотеки и использованием материнского капитала. Вы получаете квартиру значительно ниже рынка, нет финансовых рисков, только соблюдение определенных правил организаторов торгов, но это наши задачи и все организационные моменты мы берем на себя. Позвоните и запишитесь к нам на консультацию. Предложение ограничено по времени.
Цена
9 560 000 ₽

Закажите консультацию специалиста

Оставьте заявку
Нажимая на кнопку «Отправить заявку», Вы даете согласие на обработку своих персональных данных.
×
продажа
Что вы хотите продать?
Сколько комнат?
Тип объекта?
В каком регионе?
В каком районе Санкт-Петербурга
В каком районе Ленинградской области?

Оставьте Ваш контакт и наши специалисты свяжутся с Вами в самые кротчайшие сроки.

+7
×
новостройка
Какие районы Санкт-Петербурга Вас интересуют?
С какой целью Вы планируете приобрести квартиру?
Сколько комнат должно быть в Вашей будущей квартире?
Какой вариант отделки Вам необходим?
Когда Вы хотите заехать?
В какой бюджет хотите уложиться?

Оставьте Ваш контакт и получите подборку квартир без риска столкнуться с мошенничеством и недостроем.

+7
×
сдать
Что вы хотите сдать?
Скольки комнатная квартира?
Какой тип коммерческой недвижимости вы хотите сдать?
В каком регионе?
В каком районе Санкт-Петербурга
В каком районе Ленинградской области?

Оставьте Ваш контакт и наши специалисты свяжутся с Вами в самые кротчайшие сроки.

+7

Продажа квартир и комнат на вторично рынке жилья.

Чтобы купить квартиру в СПб или найти подходящий вариант продажи квартиры в Петербурге на вторичном рынке жилья, требуется потратить много времени и усилий. Квартира или комната в центре Петербурга может быть существенно дороже, чем идентичная по площади в спальном районе. В первую очередь при покупке квартиры в Петербурге надо определиться с ценовой категорией, чтобы затем сосредоточиться на качестве предлагаемого жилья. Чем выше класс недвижимости, тем больше её стоимость. На сайте компании «Русский Фонд Недвижимости» вы найдете все виды вторичного жилья, от дешевых комнат и доступных квартир до элитных квартир в центре города.


Преимущества покупки квартиры на вторичном рынке:

Покупка квартиры или комнаты на вторичном рынке является самым распространенным видом сделок с недвижимостью. Очевидным преимуществом покупки квартиры на вторичном рынке по сравнению с первичным, является то, что эта недвижимость уже существует. Жилье можно посмотреть, оценить плюсы и минусы. Также, преимуществом этого сегмента является большое  разнообразие предложений: широкий выбор по типам домов, годам постройки, расположению. На вторичном рынке можно выбрать квартиру на любой вкус или соответственно финансовой возможности.


Преимущества сотрудничества с «Русским Фондом Недвижимости».

Позвоните нам и убедитесь, что купить квартиру в Петербурге можно  легко, доступно и комфортно! «Русский Фонд Недвижимости» имеет более двух десятков представительств в Санкт-Петербурге и Ленинградской области. Специалисты нашей компании обладают высокой квалификацией, подтверждённой соответствующими сертификатами, и уникальным опытом работы на рынке недвижимости.

  У нас работают только профессионалы,
  Есть  доступ к профессиональным базам данных по недвижимости
Мы проверяем всю документацию, связанную со сделкой купли-продажи

Мы оказываем следующие услуги при операциях с недвижимостью:

  Подбор вариантов и покупка квартиры или комнаты.
  Прямая продажа квартиры  или продажа с встречной покупкой
  Продажа и покупка квартир класса «бизнес», «элита» и «премиум»
  Полное сопровождение сделки:
  Экспертная оценка рыночной стоимости квартиры
  Проверка «чистоты» истории квартиры
  Помощь в оформлении документов
  Консультации по ипотеке и содействие в получение кредита
  Помощь в приватизации
  Расселение коммунальных квартир


Как правильно выбрать квартиру на вторичном рынке.

Рынок вторичной недвижимости часто таит в себе опасности. Купив квартиру, до сих пор можно столкнуться с ситуацией, что на приобретенной жилплощади окажутся приписанными несовершеннолетние дети или недееспособные граждане. Чтобы не оказаться жертвой мошенников, и избежать других проблем и неоправданных затрат времени, следует воспользоваться услугами профессионального риэлторского агентства, такого как, например, «Русский Фонд Недвижимости». Специалисты компании помогут подобрать подходящий вариант и будут сопровождать сделку на всех этапах.

Этот сайт использует файлы cookie для улучшения пользовательского опыта. Cookie - это небольшие текстовые файлы, которые сохраняются на вашем устройстве и помогают нам запоминать ваши предпочтения, анализировать посещаемость сайта и предоставлять более персонализированный контент. Использование файлов cookie позволяет нам сделать сайт удобнее для вас. Политика конфиденциальности
Принять Отказаться