Коммерческая недвижимость

Комнаты
Например: Массальского, 4
Ванные
Универсальные помещения

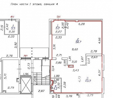
Сертолово г., Центральная ул. м.Проспект Просвещения


193.4 м2
Общая
Универсальное коммерческое помещение S 193,4 кв метра в ЖК 2024 г. постройки в г. Сертолово. Помещение угловое, с тремя входами и лаконичной планировкой. Отлично подойдёт для кафе -бистро, небольшие маркеты, творческие мастерские или учебные цетры. По условиям аренды: • минимальный срок договора: 12 месяцев • возможность пролонгации на выгодных условиях • депозит: в размере одной месячной арендной платы • разрешено размещение вывесок и рекламы на фасаде • льгота по оплате аренды на период ремонта- арендные каникулы 1 (первый месяц) аренды Базовая арендная плата 1400 рублей за 1 кв метр помещения в месяц. Просмотры по предварительному согласованию.
Цена
270 760 ₽/мес

Универсальные помещения

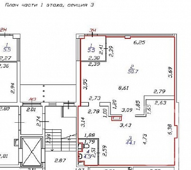
Сертолово г., Центральная ул. м.Проспект Просвещения


154.3 м2
Общая
Интересное предложение на рынке аренды коммерческой недвижимости: S 154,3 кв. метра, два входа основных и третий запасной. Объект находится в г. Сертолово в новом жилом комплексе 2024 г. постройки. По условиям аренды: • минимальный срок договора: 12 месяцев • возможность пролонгации на выгодных условиях • депозит: в размере одной месячной арендной платы • разрешено размещение вывесок и рекламы на фасаде • льгота по оплате аренды на период ремонта- арендные каникулы 1 (первый месяц) аренды Базовая арендная плата 1400 рублей за 1 кв метр помещения в месяц.
Цена
216 020 ₽/мес

Универсальные помещения

Сертолово г., Центральная ул. м.Парнас


234.2 м2
Общая
ЖК «Сертолово Парк»— это современный жилой комплекс в городе Сертолово  Ленинградской области. В комплексе представлены разнообразные варианты квартир с чистовой отделкой. Всего в проекте четыре корпуса, высота которых варьируется от 4 до 8 этажей. Часть комплекса уже сдана, идёт заселение. На сегодня число проживающих в ЖК: 1 очередь – 97% и 2 очередь- 55%.Построена 3 очередь. Открыты супермаркет Дикси пункты выдачи Озон и Вайбелерес, скоро открытие Аптеки. Рядом с ЖК «Сертолово Парк» находятся : ЖК «Чистый Ручей» на 7 корпусов, большая областная многофункциональная поликлиника, началось строительство общеобразовательной школы, действующий детский сад и открыт бассейн (декабрь 2025). По условиям аренды: •    минимальный срок договора: 12 месяцев •    возможность пролонгации на выгодных условиях •    депозит: в размере одной месячной арендной платы •    разрешено размещение вывесок и рекламы на фасаде •    льгота по оплате аренды на период ремонта- арендные каникулы 1 (первый месяц) аренды Базовая арендная плата от 1350 рублей за 1 кв метр помещения в месяц.
Цена
316 170 ₽/мес

Затрудняетесь с выбором?

Не тратьте время на поиск и анализ множества предложений недвижимости
Мы сделаем это за вас профессионально, быстро, предложив оптимальные варианты по выгодной цене!

Универсальные помещения

Челюскина ул. м.Приморская


33 м2
Общая
СПб, ул. Челюскина,10. Коммерческое помещение 33 м² с панорамным видом на залив и порт. Пространство правильной формы, что позволяет реализовать любые дизайнерские и бизнес-идеи. Помещение предлагается под отделку — вы сможете создать интерьер полностью под свои задачи. Расположено на 5 этаже 6-этажного здания в жилом комплексе Golden City — престижном проекте с платежеспособной аудиторией и высоким трафиком. Идеальное местоположение: удобный съезд и заезд на ЗСД, быстрый доступ к ключевым районам города. Идеально подойдет для: 
• офиса 
• студии красоты
 • йога-студии 
• кабинета психолога
 • стоматологического кабинета Санузлы расположены на этаже. Локация с отличным потенциалом для успешного бизнеса — место, которое работает на вас.
Цена
65 000 ₽/мес

Универсальные помещения

Сертолово г., Центральная ул. м.Проспект Просвещения


104.1 м2
Общая
В новом микрорайоне г. Сертолово сдаётся универсальное коммерческое помещение`street-retail` , площадью 104,1 кв.метр. Предложение интересно для открытия аптек, небольших учебно-культурных центров, кафе-бистро и для других социальных запросов. Базовая арендная плата составляет от 1350 рублей в месяц. На период ремонта предоставляются арендные каникулы сроком на один месяц. Выделенная мощность составляет 14,49 кВт (25А) 3 фазы. В данном микрорайоне сданы 2 очереди и на 80% заселены потенциальными клиентами, выдача ключей 3 очереди в этом году. В соседних коммерческих помещениях открыты объекты малого и сетевого предпринимательства. Просмотры по предварительной согласованности.
Цена
140 535 ₽/мес

Универсальные помещения

Сертолово г., Центральная ул. м.Проспект Просвещения


92 м2
Общая
В новом жилом комплексе города Сертолово предоставляется Универсальное коммерческое помещение с витринными окнами и отдельным входом. Базовая цена арендной платы составляет от 1350 рублей в месяц. Предоставляется льгота на период ремонта - арендные каникулы. Выделенная мощность 12,95 кВт (25А) 3 фазы. Данное предложение подойдёт для тех, кто ищет помещения под аптеку, магазины,творческую мастерскую или учебный центр. В соседних коммерческих помещениях открыты объекты малого и сетевого предпринимательства. Просмотры по предварительной согласованности.
Цена
124 200 ₽/мес

Универсальные помещения

Сертолово г., Центральная ул. м.Озерки


180.6 м2
Общая
Универсальное коммерческое помещение `street retail` в новом микрорайоне города Сертолово Ленинградской области. По условиям аренды: • минимальный срок договора: 12 месяцев • возможность пролонгации на выгодных условиях • депозит: в размере одной месячной арендной платы • разрешено размещение вывесок и рекламы на фасаде • льгота по оплате аренды на период ремонта- арендные каникулы 1 (первый месяц) аренды Базовая арендная плата от 1350 рублей за 1 кв метр помещения в месяц. Инженерные системы: централизованная приточно‑вытяжная вентиляция, пожарная сигнализация. Выделенная мощность составляет: 24,75 кВт (50А) 3 фазы. Данное универсальное помещение подходит для сетевого бизнеса: магазины, аптеки, идеально под офис, творческую мастерскую или учебные и спортивные центры. В соседних коммерческих помещениях открыты объекты малого и сетевого предпринимательства. Просмотры по предварительной согласованности.
Цена
243 810 ₽/мес

Универсальные помещения

Сертолово г., Центральная ул. м.Проспект Просвещения


104.6 м2
Общая
Универсальное помещение в новом ЖК `Сертолово Парк` г. Сертолово Ленинградской области. Базовая арендная плата составляет от 1350 рублей в месяц. Предоставляются льготные арендные каникулы на период ремонта (один месяц). Выделенная мощность около 14,49 к Вт (25А) 3 фазы, централизованная приточно‑вытяжная вентиляция, кондиционирование, пожарная сигнализация, витринные окна с возможностью  размещения вывесок и рекламы на фасаде. Предложение интересно для сетевого бизнеса, культурно творческих мастерских и спортивных клубов. Просмотры по предварительной согласованности.
Цена
141 210 ₽/мес

Универсальные помещения

Пушкин г., Оранжерейная ул. м.Московская


97 м2
Общая
Ваш бизнес в топовой локации Пушкина: аренда помещения 97 квМ с отдельным входом Откройте своё дело в одной из лучших точек города: сдаём в аренду универсальное коммерческое помещение на Оранжерейной улице. Идеальное решение для розничной торговли, салона красоты, офиса или сферы услуг. Расположение: г. Пушкин, Оранжерейная улица 13/52 Основные параметры: - площадь 97 квМ - первый высокий этаж - отдельный вход с улицы. ✨ Почему это выгодное предложение: Превосходная локация — самая перспективная и оживлённая улица города Пушкин. Высокий трафик — постоянный поток потенциальных клиентов: интенсивное автомобильное и пешеходное движение рядом с помещением. Отличная видимость с дороги — ваш бизнес будет заметен, что особенно важно для привлечения посетителей. Удобный подъезд и возможность парковки рядом — комфорт для ваших клиентов и сотрудников. Отдельный вход с улицы повышает статус и узнаваемость бизнеса, обеспечивает удобный доступ посетителям. Универсальный формат помещения подходит для разных видов коммерческой деятельности: от магазина до офиса. Удобная планировка позволяет грамотно организовать пространство — разместить торговый зал, кабинеты или зоны обслуживания. Кому подойдёт: - розничным магазинам; - салонам красоты и косметологическим студиям; - офисам различных компаний; - предприятиям сферы услуг; другим видам бизнеса, требующим проходимого места. Записывайтесь на просмотр прямо сейчас! Не упустите шанс разместить свой бизнес в лучшей точке города Пушкин и обеспечить стабильный поток клиентов. Ждём вашего звонка — ответим на все вопросы и организуем показ помещения в удобное для вас время! КУ оплачиваются отдельно (от 6 000 до 20 000 рублей в месяц) Комиссия агентства 60%
Цена
190 000 ₽/мес

Универсальные помещения

Тихвин г., 1а мкр.


139.6 м2
Общая
Сдаётся в аренду помещение бара «Высокий градус» в Тихвине — топовый микрорайон! Идеальное помещение под ключ для вашего бизнеса! Готовое или пустое — выбирайте вариант.   Микрорайон 1А, Тихвин (Ленинградская область) — крупнейший район с огромным потоком жителей. На первом этаже двухэтажного здания. Подходит под магазин, кафе, бар, общепит или торговлю. Высокая проходимость обеспечит быструю окупаемость Вашего бизнеса! ✅ Пустое помещение (без бара) — чистый старт под любой формат.   ✅ С действующим баром «Высокий градус» + инвентарь — готовый бизнес сразу.   ✅ Общепит целиком с оборудованием. Свежий ремонт, полный набор для работы! Преимущества помещения: • Планировка: 2 санузла, просторная кухня с вентиляцией, кабинет директора, складские помещения, кондиционеры. • Инфраструктура: Парковка, асфальтированные подъезды, центр микрорайона с тысячами жителей. • Безопасность: Видеонаблюдение, пожарная сигнализация, тревожная кнопка. • Коммуникации: Своя газовая котельная, центральная вода/канализация, 15 кВт электричества. • Здание: 1-й этаж двухэтажного дома. Возможно сдача помещения c  оборудования, аренда оговаривается дополнительно.
Цена
126 000 ₽/мес

Универсальные помещения

Московский просп. м.Московская


120 м2
Общая
Сдается помещение свободного назначения, в элитном жилом комплексе «Граф Орлов», Общей площадью 120 м.кв.. Помещение находится на первом этаже, жилого дома, высота потолков 3,6м., витринные окна, приточно-вытяжная вентиляция с подогревом, сделан качественный ремонт.  Вход в помещение осуществляется со двора. Арендная ставка составляет 215000р. за месяц.
Цена
215 000 ₽/мес

Универсальные помещения

Большевиков просп. м.Проспект Большевиков


235 м2
Общая
№ 343753 Ищете пространство, которое станет лицом вашего бизнеса? Помещение на пр. Большевиков, д. 3 — это не просто стены, это готовая сцена для вашего проекта. Представьте: огромные окна-витрины, выходящие на оживленный проспект. Ваши гости будут наблюдать за жизнью города изнутри, а город — любоваться вашим стилем снаружи. Технические характеристики под любые задачи: Высота потолков 2,82 м — создают ощущение простора. Мощность 37 кВт — хватит на самое прожорливое оборудование, а если не хватит - возможно увеличение. Приточно-вытяжная вентиляция — обязательное условие для общепита или фитнеса уже выполнено. Планировка позволяет создать как open space, так и кабинетную систему. Локация — точка притяжения: банки, аптеки, рестораны, копицентры. Это район, где люди живут, работают и тратят деньги. Помещение свободно. Ранее здесь располагался банк (отделка под офис/обслуживание клиентов), но оно идеально подойдет и под шоу-рум, и под ресторан, и под семейный центр. Цена вопроса — 1 000 000 руб/мес (3830 руб/м2). Для такого «паспорта» помещения это инвестиция в ваш имидж и охват аудитории. Для новых арендаторов — арендные каникулы на входе. Звоните, договоримся на просмотр в удобное для вас время.
Цена
990 000 ₽/мес

Закажите консультацию специалиста

Оставьте заявку
Нажимая на кнопку «Отправить заявку», Вы даете согласие на обработку своих персональных данных.
×
продажа
Что вы хотите продать?
Сколько комнат?
Тип объекта?
В каком регионе?
В каком районе Санкт-Петербурга
В каком районе Ленинградской области?

Оставьте Ваш контакт и наши специалисты свяжутся с Вами в самые кротчайшие сроки.

+7
×
новостройка
Какие районы Санкт-Петербурга Вас интересуют?
С какой целью Вы планируете приобрести квартиру?
Сколько комнат должно быть в Вашей будущей квартире?
Какой вариант отделки Вам необходим?
Когда Вы хотите заехать?
В какой бюджет хотите уложиться?

Оставьте Ваш контакт и получите подборку квартир без риска столкнуться с мошенничеством и недостроем.

+7
×
сдать
Что вы хотите сдать?
Скольки комнатная квартира?
Какой тип коммерческой недвижимости вы хотите сдать?
В каком регионе?
В каком районе Санкт-Петербурга
В каком районе Ленинградской области?

Оставьте Ваш контакт и наши специалисты свяжутся с Вами в самые кротчайшие сроки.

+7
Коммерческая недвижимость Петербурга.

Городская коммерческая недвижимость – один самых востребованных сегментов рынка. Она привлекательна как для прямых клиентов, так и для инвесторов. На сайте компании «Русский Фонд Недвижимости»  вы найдете лучшие предложения по продаже и аренде офисов, складов, магазинов и производственных помещений.


Преимущества сотрудничества с «Русским Фондом Недвижимости».

Отдел коммерческой недвижимости «РФН» поможет совершить любые операции с коммерческой недвижимостью. Специалисты компании обеспечат:

✔  подбор подходящего варианта, соответствующего реальной рыночной цене,
✔  оформление сделки по купле, продаже или аренде коммерческой недвижимости.


Опыт и высокая квалификация специалистов создают благоприятные и безопасные условия для проведения всех сделок с недвижимостью.  Мы предлагаем эффективные решения, отвечающие индивидуальным требованиям клиентов.

Этот сайт использует файлы cookie для улучшения пользовательского опыта. Cookie - это небольшие текстовые файлы, которые сохраняются на вашем устройстве и помогают нам запоминать ваши предпочтения, анализировать посещаемость сайта и предоставлять более персонализированный контент. Использование файлов cookie позволяет нам сделать сайт удобнее для вас. Политика конфиденциальности
Принять Отказаться