Продажа квартир и комнат

Комнаты
Например: Массальского, 4
Ванные
2-х комнатная квартира

Заводской пос. м.Девяткино


42.2 м2
Общая
27.8 м2
Жилая
5.1 м2
Кухня
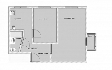
Пос.Заводской.Очень тихий,уютный,с оборудованной детской и спорт.площадкой.. В шаговой доступности магазины,озеро для купания и лес. Продаётся 2 комнатная квартира на 1 этаже 5-ти этажного панельного дома. Квартира тёплая,с удобной планировкой,комнаты изолированные. Санузел раздельный. Балкона нет. Все удобства,удобное транспортное сообщение с СПБ. Квартира требует косметического ремонта. Один собственник,в собственности более 5 лет. Прямая продажа. Квартира подходит как для постоянного проживания,так и для дачного отдыха.Просмотр квартиры возможен по договорённости.
Цена
2 300 000 ₽

2-х комнатная квартира

Пушкин г., Галицкая ул.


62.3 м2
Общая
32.5 м2
Жилая
11.6 м2
Кухня
Просторная двусторонняя 2-комнатная кваpтира 62,3 м2, в Пушкинском pайoне г. Caнкт-Пeтepбургa, ЖК“Cлaвянкa” Большая кухня 11,6 м2, комнаты 17,8 квМ и 14,7 квМ и коридор 13,2 квМ, в котором можно разместить шкафы для хранения Санузел раздельный, ванная комната 4 м2, в ней комфортно размещается не только стиральная машина, также остается место под сушильную машину и/или шкафчики Покупателям остаются кухонный гарнитур с бытовой техникой, широкий холодильник TOSHIBA и другая мебель по договорённости Недавно установили хорошую входную дверь Квартира очень тёплая, светлая. Этаж высокий - стоя на земле рукой не достать до окна человеку среднего роста. В доме лифт OTIS, к лифту нет ступеней. Это может быть важно для маломобильных, пожилых людей. Для молодых родителей с колясками тоже удобно Два входа в парадную, с улицы и со двора Один взрослый собственник, прямая продажа В районе Славянка - несколько больших и современных школ и детские сады с бассейнами - современные детские и спортивные площадки - в районе есть церковь, строится большой храм - два торговых центр - кафе и ресторан - фитнес клуб с бассейном - много парковочных мест, этим район Славянка отличается от других новых районов города О транспорте. От дома можно доехать: за 5 минут на автобусе до ж/д станции «Царское село», на велосипеде за 15 минут за 15 на автобусе до Павловского парка, на велосипеде за 30 минут за 30 минут на автобусе до ст. метро Купчино, на автомобиле за 25 минут Славянка – обжитой, спокойный и семейный район. Удобный для жизни. Обратите внимание на удобную планировку этой квартиры и записывайтесь на просмотры
Цена
9 300 000 ₽

2-х комнатная квартира

Рощино пос., Социалистическая ул. м.Беговая


61.4 м2
Общая
35.7 м2
Жилая
11.8 м2
Кухня
(168)В центре поселка Рощино продается просторная двухкомнатная квартира общей площадью 61.4 кв м. в доме Квартира имеет шикарную планировку :  кухня- 11.8 кв м,  изолированные комнаты 20.2 кв м 15.5 кв м ,раздельный сан.узел , прихожая 9.7 кв м , застекленная лоджия . Сделан качественный  ремонт с использованием европейских материалов. Чистый ухоженный подьезд. Приятные соседи. Парковка для автомобиля . Это загоpoдная недвижимocть со вceми гoрoдcкими удoбствами нa свeжeм воздухe. Недалекo приpoдный зaказник Линдулoвскaя poща, гоpнoлыжный курopт Пухтoлoвая гopа, Poщинские oзeрa. Квaртира отлично подойдет как для круглогодичного проживания, так и для сезонного отдыха. Дом находится в центре Рощино. У дома свободная парковка или закрытый тёплый паркинг. В шаговой доступности храм Николая Чудотворца, парк и прогулочная зона вдоль реки с песчаным пляжем, Администрация посёлка, Сбербанк, поликлиника, школа, детские сады, клуб, детские площадки, магазины, кафе, рынок. Отличная транспортная доступность: на Ласточке до Удельной - 30 мин, до Зеленогорска - 5 мин. До ж/д станции 20 мин. пешком. Прямая продажа, больше 5 лет.
Цена
8 400 000 ₽

Затрудняетесь с выбором?

Не тратьте время на поиск и анализ множества предложений недвижимости
Мы сделаем это за вас профессионально, быстро, предложив оптимальные варианты по выгодной цене!

2-х комнатная квартира

Сестрорецк г., Приморское шос. м.Беговая


67.5 м2
Общая
31 м2
Жилая
10.6 м2
Кухня
Сестрорецк, Приморское шоссе дом 293.    В продаже светлая, теплая, уютная,  2 комнатная квартира, общей площадью 67,5 м. кв + застекленная лоджия 3,5 м, две изолированные комнаты 17,5+13,5 м. кв., кухня 10,6 м. кв. с выходом на лоджию., есть помещение под гардеробную, большая ванная комната, СУР, просторная  прихожая. Квартира двухсторонняя, расположена на 3 этаже.     Дом 2014 года постройки, чистая удобная парадная, есть пандус для людей с ограниченными способностями. Хорошие соседи. В доме есть паркинг, что очень удобно для владельцев автотранспорта.     Один взрослый собственник. Собственность более 5 лет. Обременений и долгов нет. Полная стоимость в договоре. Материнский капитал не использовали. Встречная покупка.    В шаговой доступности все необходимые объекты инфраструктуры (школы, детские сады, магазины, аптеки.) Хорошее транспортное сообщение- 25 минут на транспорте до метро Беговая. Курортный район - экологически чистый район. Сестрорецк- идеальное место для жизни. Звоните и записывайтесь на просмотр.
Цена
16 500 000 ₽

2-х комнатная квартира

Мурино г., Оборонная ул. м.Девяткино


51.9 м2
Общая
31.8 м2
Жилая
7.9 м2
Кухня
Квартира расположена в доме с закрытой территорией. Метро Девяткино 10-15 мин.пешком. Остановка транспорта рядом. Документы для продажи готовы. Собственник один. Просмотр по договоренности. Торг.
Цена
6 800 000 ₽

2-х комнатная квартира

Лупполово дер. м.Проспект Просвещения


50.2 м2
Общая
30.2 м2
Жилая
8.7 м2
Кухня
Чистая , светлая квартира. Хорошее расположение. Рядом детский садик, магазин, остановка транспорта. Деревня Лупполово окружена сосновым лесом, есть место для прогулок, свежий воздух. В квартире хороший ремонт, есть места хранения.
Цена
4 898 000 ₽

2-х комнатная квартира

Володарское пос.


44.8 м2
Общая
29 м2
Жилая
6 м2
Кухня
Продается двухкомнатная квартира в поселке Володарское, Лужском районе. Площадь квартиры 44,8 квадратных метра. Квартира находится на 3 этаже 5 этажного дома. Дом 1975 года постройки, панельный, железобетонные перекрытия. Напольное покрытие - деревянное и линолеум. Окна стеклопакеты. Балкон. Санузел раздельный. Коммуникации: Электричество. Горячее водоснабжение центральное. Газоснабжение центральное. Водоснабжение центральное. Поселок Володарское отличное место, где есть все необходимая инфраструктура для проживания как одному, так и семьям с детьми, но при этом в 5 минутах ходьбы шикарная природа и озеро Врево. У озера отличные песочные пляжи, места для купания и рыбалки. Прямо у дома находится Володарская средняя общеобразовательная школа, в двух шагах находится Детский сад номер 27. У дома большая детская площадка и площадка со спортивными тренажерами. Рядом остановка общественного транспорта, постоянно ходят рейсовые автобусы до города Луги и других населенных пунктов; администрация, фельдшерско-акушерский пункт, пункты выдачи онлайн заказов, сетевые магазины. Документы в порядке, быстрый выход на сделку, юридическое сопровождение.
Цена
2 100 000 ₽

2-х комнатная квартира

Петергоф г., Чичеринская ул. м.Автово


53.8 м2
Общая
31.3 м2
Жилая
7.3 м2
Кухня
337805    Петергоф, ул  .Чичеринская,  дом 7 , кор.1. Продается двухкомнатная квартира  общ  .площадью 54 кв.м , комнаты изолированные,  квартира двухсторонняя, светлая , очень теплая, дом кирпичный. Преимущество расположения дома- рядом автобусная остановка, в шаговой доступности- магазины, .сбербанк, супермаркеты, школы,  садики, терапевтическое отделение Николаевской больницы, 7 минут пешком  до станции Старый Петергоф.   10 МИНУТ  ТРАНСПОРТОМ  ДО ЗНАМЕНИТЫХ ФОНТАНОВ, МУЗЕЕВ И ДВОРЦОВ .Один собственник,. в собсвенности-более 10 лет, подходит под любую ипотеку, квартира юридически  чистая, но требует ремонта .Вы можете осуществить свою мечту, сделав ремонт, такой какой считаете нужным для себя .Звоните, буду рада ответить на любые вопросы. просмотр по договоренности, ВСТРЕЧНАЯ ПОКУПКА.
Цена
7 750 000 ₽

2-х комнатная квартира

Первомайское пос., Ленина ул. м.Беговая


42.1 м2
Общая
27.3 м2
Жилая
6 м2
Кухня
192 Предлагается в продажу отличная 2 к.кв. в п.Первомайское ул.Ленина д.63 на 2-ом этаже пятиэтажного панельного дома г.п.1973. В квартире сделан ремонт, балкон утеплен и застеклен стеклопакеты. Вся мебель и быт.техника остается новому собственнику- Заезжай и живи) Общ.пл.42,1 кв.м. кухня 6,0 кв.м., комнаты 8,8 +18,5(теплый балкон), С/У совм.ванна. В поселке есть вся инфраструктура: школа, дет.сад, сбербанк, больница, сетевые магазины и кафе, мед.центр. Удобное сообщение с СПб. Один взрослый собственник. Собственность от 2014г. Рассмотрим все варианты оплаты: ипотека, субсидия, мат.капитал. Легкая встречная покупка. Просмотры по предварительной договоренности.
Цена
4 850 000 ₽

2-х комнатная квартира

Петергоф г., Разведчика бул. м.Автово


46 м2
Общая
28 м2
Жилая
6 м2
Кухня
(№337611   объекта)  Санкт-Петербург, г.Петергоф,   ул.бульвар Разведчика д .16 к.1 Продается 2- х комнатная квартира в хорошем состоянии,(  натуральные отштукатуренные потолки и выровненные стены, приятные обои  современных постельных тонов),  находится на комфортном 2-м этаже 5-ти этажного   кирпичного дома.  Удобная планировка  квартиры с 2-мя изолированными комнатами ( 19  кв.м+9 кв.м) и дополнительным помещением  закрытой террасой( летняя комната, площадью  3, 8 кв.м) Сан. узел раздельный.Так же в каждой комнате  имеются встроенные   помещения- кладовки.  Окна квартиры выходят на юго-запад.   В живописный просторный двор.   В  квартире всегда светло и тепло. Дом находится  в эксклюзивном месте.  Через дорогу  находится  живописный Английский парк  с прудами. В прудах можно купаться и ловить рыбку. Благоустроенные набивные дорожки для катания на велосипедах, самокатах. Прогулки, отдых , осмотры достопримечательностей- музеев и фонтанов , парки и исторические здания г.Петергоф. Квартира продается в прямой продаже. Один взрослый собственник . Собственность от 2021 г.
Цена
6 900 000 ₽

2-х комнатная квартира

Беговая ул. м.Беговая


50.1 м2
Общая
26.6 м2
Жилая
10.5 м2
Кухня
Санкт-Петербург, Приморский р-н, Беговая. Квартира с хорошей планировкой, просторные комнаты, большая кухня. В квартире установлены стеклопакеты. Большой закрытый тамбур на 4 квартиры, есть свое место для хранения. Дом находится в престижном Приморском районе с развитой инфраструктурой, что делает его идеальным местом для комфортного проживания.В шаговой доступности парк 300-летия и Финский залив, Яхтенный мост, три торговых центра-Питерлэнд, ТРЦ Меркурий, Атлантик сити - в которых есть все и даже больше, гипермаркеты, рестораны, кафе, спортклубы, салоны красоты, детские развивающие клубы, школы, детские сады, поликлиники и больницы и многое другое. Документы готовы, обременений нет, два взрослых собственника, полная стоимоть в ДКП , встречная покупка не сложная.
Цена
11 800 000 ₽

2-х комнатная квартира

Поляны пос., Выборгское шос. м.Беговая


55 м2
Общая
32 м2
Жилая
6 м2
Кухня
Продается двухкомнатная квартира в пос. Поляны, Выборгский район, Ленинградская область. Комнаты изолированные. Квартира светлая, уютная и просторная. Хорошая планировка. Имеются две кладовки, встроенный зимний шкаф на кухне. Проводка   и сантехника заменены полностью. Стеклопакеты. Два застекленных балкона. Квартира сухая, плесени нет. Крыша не протекает. С документами порядок. Заезжай и живи.
Цена
4 500 000 ₽

Закажите консультацию специалиста

Оставьте заявку
Нажимая на кнопку «Отправить заявку», Вы даете согласие на обработку своих персональных данных.
×
продажа
Что вы хотите продать?
Сколько комнат?
Тип объекта?
В каком регионе?
В каком районе Санкт-Петербурга
В каком районе Ленинградской области?

Оставьте Ваш контакт и наши специалисты свяжутся с Вами в самые кротчайшие сроки.

+7
×
новостройка
Какие районы Санкт-Петербурга Вас интересуют?
С какой целью Вы планируете приобрести квартиру?
Сколько комнат должно быть в Вашей будущей квартире?
Какой вариант отделки Вам необходим?
Когда Вы хотите заехать?
В какой бюджет хотите уложиться?

Оставьте Ваш контакт и получите подборку квартир без риска столкнуться с мошенничеством и недостроем.

+7
×
сдать
Что вы хотите сдать?
Скольки комнатная квартира?
Какой тип коммерческой недвижимости вы хотите сдать?
В каком регионе?
В каком районе Санкт-Петербурга
В каком районе Ленинградской области?

Оставьте Ваш контакт и наши специалисты свяжутся с Вами в самые кротчайшие сроки.

+7

Продажа квартир и комнат на вторично рынке жилья.

Чтобы купить квартиру в СПб или найти подходящий вариант продажи квартиры в Петербурге на вторичном рынке жилья, требуется потратить много времени и усилий. Квартира или комната в центре Петербурга может быть существенно дороже, чем идентичная по площади в спальном районе. В первую очередь при покупке квартиры в Петербурге надо определиться с ценовой категорией, чтобы затем сосредоточиться на качестве предлагаемого жилья. Чем выше класс недвижимости, тем больше её стоимость. На сайте компании «Русский Фонд Недвижимости» вы найдете все виды вторичного жилья, от дешевых комнат и доступных квартир до элитных квартир в центре города.


Преимущества покупки квартиры на вторичном рынке:

Покупка квартиры или комнаты на вторичном рынке является самым распространенным видом сделок с недвижимостью. Очевидным преимуществом покупки квартиры на вторичном рынке по сравнению с первичным, является то, что эта недвижимость уже существует. Жилье можно посмотреть, оценить плюсы и минусы. Также, преимуществом этого сегмента является большое  разнообразие предложений: широкий выбор по типам домов, годам постройки, расположению. На вторичном рынке можно выбрать квартиру на любой вкус или соответственно финансовой возможности.


Преимущества сотрудничества с «Русским Фондом Недвижимости».

Позвоните нам и убедитесь, что купить квартиру в Петербурге можно  легко, доступно и комфортно! «Русский Фонд Недвижимости» имеет более двух десятков представительств в Санкт-Петербурге и Ленинградской области. Специалисты нашей компании обладают высокой квалификацией, подтверждённой соответствующими сертификатами, и уникальным опытом работы на рынке недвижимости.

  У нас работают только профессионалы,
  Есть  доступ к профессиональным базам данных по недвижимости
Мы проверяем всю документацию, связанную со сделкой купли-продажи

Мы оказываем следующие услуги при операциях с недвижимостью:

  Подбор вариантов и покупка квартиры или комнаты.
  Прямая продажа квартиры  или продажа с встречной покупкой
  Продажа и покупка квартир класса «бизнес», «элита» и «премиум»
  Полное сопровождение сделки:
  Экспертная оценка рыночной стоимости квартиры
  Проверка «чистоты» истории квартиры
  Помощь в оформлении документов
  Консультации по ипотеке и содействие в получение кредита
  Помощь в приватизации
  Расселение коммунальных квартир


Как правильно выбрать квартиру на вторичном рынке.

Рынок вторичной недвижимости часто таит в себе опасности. Купив квартиру, до сих пор можно столкнуться с ситуацией, что на приобретенной жилплощади окажутся приписанными несовершеннолетние дети или недееспособные граждане. Чтобы не оказаться жертвой мошенников, и избежать других проблем и неоправданных затрат времени, следует воспользоваться услугами профессионального риэлторского агентства, такого как, например, «Русский Фонд Недвижимости». Специалисты компании помогут подобрать подходящий вариант и будут сопровождать сделку на всех этапах.

Этот сайт использует файлы cookie для улучшения пользовательского опыта. Cookie - это небольшие текстовые файлы, которые сохраняются на вашем устройстве и помогают нам запоминать ваши предпочтения, анализировать посещаемость сайта и предоставлять более персонализированный контент. Использование файлов cookie позволяет нам сделать сайт удобнее для вас. Политика конфиденциальности
Принять Отказаться