Продажа квартир и комнат

Комнаты
Например: Массальского, 4
Ванные
4-х комнатная квартира

Типанова ул. м.Звездная


100.6 м2
Общая
68 м2
Жилая
10.3 м2
Кухня
Идеальная квартира для большой счастливой семьи! Комфортная планировка с тремя изолированными спальнями,просторной гостиной и кухней с видом из окна на потрясающие закаты. Преимущества данной квартиры: -Отсутствии соседей выше и наличие технического этажа. -Всего одна общая стена с соседями сбоку. -Установлено два мощных кондиционера и бризер для свежего воздуха. -Подготовлена инженерия для установки сауны в санузле. -Общая кладовая на этаже для хранения вещей,которые обычно хранят на балконе. -Наличие двух облагороженных парковочных места возле дома. -Утепленная лоджия с теплыми полами. Дом расположен в одном из самых развитых районов города,в Московском. В пешей доступности школы,детские сады,взрослая и детская поликлиники,ТЦ “Радуга» и ТЦ”Космос”,гипермаркет О’кей. До метро две остановки транспортом.
Цена
27 997 000 ₽

4-х комнатная квартира

Вырица пос., Введенская ул. м.Купчино


86.9 м2
Общая
52.36 м2
Жилая
10.04 м2
Кухня
(170) Продается 4 кв., общей площадью 86,9 кв.м. Квартира расположена на 5/5 кирпичного дома. Все комнаты изолированные.Кухня 10,4 м, комнаты 14,10+17,36+8,72+12,18, прихожая 19,09 м. В квартире две лоджии, расположена на две стороны.Ванна и с/у отдельные. Для большой семьи или для аренды. До ж/д 12 минут ходьбы. Казанский храм б.м. 20 минут.В Вырице много магазинов, две школы, два садика, сбербанк, баня с бассейном, рынок. Лес и р.Оредеж в пешей доступности.
Цена
7 500 000 ₽

4-х комнатная квартира

Сланцы г., Ленина ул.


72.7 м2
Общая
48 м2
Жилая
8.3 м2
Кухня
Ленинградская область г. Сланцы ул. Ленина д. 32в Ваш шанс стать счастливым обладателем идеальной квартиры в тихом зеленом дворе! Представьте себе такую картину: спокойный уютный двор, детишки играют на детской площадке, которую видно прямо из окна вашей будущей кухни... Школа и детский сад – в шаговой доступности, родители будут спать спокойно, зная, что дорога до учебного заведения займет пару минут ходьбы! Особенное внимание заслуживает тот факт, что в доме настолько хорошая теплоизоляция, что даже установка современных стеклопакетов кажется излишней роскошью. Как приятно возвращаться домой зимой и чувствовать приятное тепло, которое согревает душу и тело! Общая площадь квартиры впечатляет – целых 72.7 квадратных метра, просторные комнаты ждут своего хозяина, готового создать здесь настоящий семейный очаг. Санузел радует глаз качественной отделкой, теплые полы обеспечивают дополнительный комфорт, а наличие стиральной машины избавляет от лишних забот. Просторная кухня площадью 8.3 квадратов приглашает насладиться домашними ужинами или принять гостей на праздник Нового Года! Всё коммуникации централизованы, установлены счетчики воды, недавно заменены трубы, поэтому никаких сюрпризов и неожиданных расходов ждать не приходится. Чистота подъезда, ухоженная придомовая территория, оборудованные скамейки и клумбы создают ощущение настоящего домашнего уюта. Во дворе предусмотрена удобная парковка, также имеется платная стоянка и автомойка, где вы сможете привести автомобиль в порядок. Задолженности по коммунальным платежам отсутствуют, новый владелец получает чистую историю платежей и сможет спокойно распоряжаться своим имуществом. А теперь самое главное: разумный торг приветствуется! Осталось лишь позвонить и сделать первый шаг навстречу своему счастью! Подождите немного… зачем откладывать счастье на потом? Звоните прямо сейчас и станьте владельцем квартиры, которая идеально подходит именно вам!
Цена
4 200 000 ₽

Затрудняетесь с выбором?

Не тратьте время на поиск и анализ множества предложений недвижимости
Мы сделаем это за вас профессионально, быстро, предложив оптимальные варианты по выгодной цене!

4-х комнатная квартира

Гарболово дер. м.Девяткино


86.7 м2
Общая
58.8 м2
Жилая
9.2 м2
Кухня
К продаже предлагается 4 комнатная квартира 86,7 кв.м. общей площади, на 2/2 этажного коттеджа, жилая площадь 58,8 кв.м . комнаты все изолированы 19,5;16,8;13,2;9,3 , кухня 9,2, коридор 12,2, СУР, отопление центральное, гор. водоснабжение бойлер. квартира в удовлетворительном состоянии. Гарболово поселок с развитой инфраструктурой, школа. д/сад. амбулатория. магазины. Сбербанк. почта. Удобное транспортное сообщение с СПБ, маршрутки до м. Девяткино и пр. Просвещения, а также можно доехать до ст. Грузино. Вокруг красивая природа, недалеко небольшое озеро, прекрасное место для ПМЖ. Пр. продажа, документы готовы.
Цена
6 490 000 ₽

Комната в 4-комн. квартире

Большая Пушкарская ул. м.Петроградская


108.2 м2
Общая
19 м2
Жилая
 —
Кухня
Санкт-Петербург ул. Большая Пушкарская Предлагаем вашему вниманию уникальную комнату в историческом центре Санкт-Петербурга! Расположение:Престижный район города с развитой инфраструктурой, пешеходная доступность до исторических достопримечательностей и ключевых городских маршрутов. Особенности помещения:Высокие потолки, придающие комнате особый шарм и создавая неповторимую атмосферу старины. Отдельный плюс – раздельный санузел, гарантирующий комфортное личное пространство.   Перспективы использования:Эта комната идеально подойдет как для личного проживания, так и для сдачи в аренду туристам и гостям города. Потенциал для инвестиций и получение стабильного дохода очевиден. Адрес:Большая Пушкарская улица, 2, Санкт-Петербург. Этот дом, построенный в 1899 году по проекту известного архитектора Леонтия Васильевича Шмеллинга, является памятником архитектуры и истории. Для бронирования или организации просмотра обращайтесь немедленно!Не упустите возможность прикоснуться к исторической эпохе и одновременно выгодно вложить средства! Будем рады видеть вас на просмотре и подробно познакомить с нашим предложением!
Цена
3 300 000 ₽

Комната в 4-комн. квартире

Сертолово г., Ларина ул. м.Проспект Просвещения


108 м2
Общая
18 м2
Жилая
12 м2
Кухня
Ленинградская обл., г. Сертолово ул. Ларина д.6 Продаётся комната в 4-ъх комнатной квартире в прямой продаже, площадью 18 кв. м. Комната н нормальном состоянии. В Сертолово развита вся инфраструктура для комфортного проживания. Рядом лесной массив.  Хорошее сообщение с Санкт-Петербургом.
Цена
2 100 000 ₽

Комната в 4-комн. квартире

Луга г., Луга-3 нп


40 м2
Общая
10.1 м2
Жилая
15 м2
Кухня
Продаётся комната в четырёхкомнатной квартире! Адрес: Луга 3, д. 3/40. Основные характеристики: * Квартира на третьем этаже кирпичного дома. * Площадь комнаты — 10,1 м². * Высокие потолки — три метра. Преимущества: * В шаговой доступности детский сад, школа и автобусная остановка. * Рядом вся необходимая инфраструктура: магазины («Дикси», «Хлебное раздолье» и другие). * Недалеко — сосновый лес и озёра. Не упустите свой шанс стать обладателем этой замечательной комнаты! Звоните и записывайтесь на просмотр.
Цена
650 000 ₽

Комната в 4-комн. квартире

Комсомола ул. м.Площадь Ленина


100 м2
Общая
17 м2
Жилая
12 м2
Кухня
Продается  комната 17 кв.м. в 4-х комнатной квартире общей площадью 100 кв. м. в центре  Санкт-Петербурга , улица Комсомола, в  10 минутах от Финляндского вокзала. В квартире живут три человека. Одна комната  используется жильцами,  как хозяйственное помещение, прачечная  и для хранения сезонных вещей. Квартира чистая, окна выходят  во двор. Несовершеннолетних детей нет, владение более 5 лет. Очень чистая парадная. Прямая продажа. Вторая комната 23 кв.м.  проживает 2 человека, готовы тоже продать. Третья комната принадлежит Санкт-Петербургу и сдается по договору социального найма 1 человеку.
Цена
3 150 000 ₽

4-х комнатная квартира

Петровский просп. м.Крестовский остров


171.59 м2
Общая
114.97 м2
Жилая
21.39 м2
Кухня
Санкт-Петербург Петровский пр 9а Представляю вашему вниманию эксклюзивное предложение для ценителей комфорта и стиля — квартира в элитном жилом комплексе на Петровском острове! Откройте двери в новый этап вашей жизни, полный элегантности и роскоши. Премиальное жилье на Петровском острове станет воплощением вашего вкуса и статуса. Ваш идеальный выбор:   Простор и свобода творчества: просторная квартира без внутренней отделки позволяет воплотить любые дизайнерские идеи и создать интерьер своей мечты.   Безупречная безопасность: круглосуточное видеонаблюдение, закрытая охраняемая территория и современные системы контроля доступа обеспечивают максимальный комфорт и спокойствие вам и вашим близким.   Удобства для автомобилистов: подземный отапливаемый паркинг .   Благоприятная среда обитания: ухоженный зеленый двор, оборудованные зоны отдыха и детский садик на территории создают атмосферу семейного благополучия. Активные работы по благоустройству завершены, и теперь ваш взгляд радует живописный ландшафт и детская площадка рядом с домом.   Эксклюзивная локация: проживание на Петровском острове обеспечивает высокий уровень экологии и отсутствие шума городских магистралей. Рядом расположены знаменитые прогулочные маршруты вдоль реки, собственный парк и водоем. Все удобства цивилизации также находятся поблизости: учебные заведения, медицинские учреждения, торговые точки и спорткомплексы. Мы предлагаем вам воспользоваться уникальным предложением, которое позволит приобрести недвижимость премиум-класса в центре культурной столицы нашей страны. Приглашаем вас ознакомиться с условиями приобретения:Узнайте подробнее о стоимости и условиях сделки, посетите объект лично и убедитесь сами в привлекательности нашего предложения. Звоните нам прямо сейчас и получите подробную консультацию о нашем проекте. Не упустите возможность сделать вашу жизнь совершеннее и комфортнее!
Цена
72 555 000 ₽

Комната в 4-комн. квартире

Сертолово г., Ларина ул. м.Проспект Просвещения


105 м2
Общая
17.8 м2
Жилая
8 м2
Кухня
Продается комната в 4-комнатной квартире в центре г.Сертолово в сталинском доме 1954 г.п.  на ул.Ларина д.6.  Рядом школа, детский сад, магазины,  остановки общественного транспорта, вся инфраструктура в пешей доступности.      Площадь комнаты 17,8кв.м,  два окна, высокие потолки,  перекрытия железобетонные. Вид из окон на уютный зеленый сквер.  В ванной комнате есть место для установки стиральной машины. Все коммуникации центральные.   Квартира малонаселенная,  в двух комнатах проживает по одному человеку.   Одна из комнат принадлежит муниципальному образованию г.Сертолово, свободна.. Обстановка в квартире спокойная и доброжелательная, никто никого не беспокоит. Поддерживается чистота во всех помещениях общего пользования.   Здание обновлено, произведена замена крыши, отремонтирован фасад и подъезды.                                                                                                                         Все сделки по продаже долей по закону обязательно удостоверяются нотариально, полная сумма в договоре, один собственник. Прямая продажа. Подходит под ипотеку. Согласие сособственников получено.
Цена
1 995 000 ₽

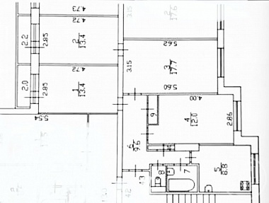
4-х комнатная квартира

Пушкин г., Ленинградская ул. м.Купчино


80.2 м2
Общая
56.5 м2
Жилая
8.8 м2
Кухня
Санкт-Петербург, Пушкинский р-н, Пушкин г., Ленинградская ул., д.87 Просторная и очень удобная квартира в одном из самых комфортных для жизни районов Царского Села. Вокруг в пешей доступности школы, детские сады, спорт.школа и бассейн, а также магазины, кафе, ресторан, поликлиника, Сбербанк и остановки общественного транспорта во всех направлениях от г.Пушкин. Планировка на две стороны дома: - на запад - кухня (8.8 кв.м), комната1 (12.0 кв.м) и комната2 (17.7 кв.м); - на восток -  комната3 с лоджией (13.4 кв.м) и комната4 с лоджией (13.4 кв.м); - просторная прихожая (9.6 кв.м) и кухня правильной квадратной формы (8.8 кв.м). Раздельный сан.узел, наличие двух застекленных лоджий и нескольких ниш в квартире безусловно обеспечат Вам комфортное проживание и позволят воплотить в жизнь самые смелые дизайн-проекты. Собственность более 5 лет, все собственники совершеннолетние. Торг возможен. Просмотры исключительно по предварительной договоренности. Рассмотрим любую форму приобретения, возможен обмен на вашу недвижимость в СПб и ЛО.
Цена
19 770 000 ₽

4-х комнатная квартира

Галерная ул. м.Адмиралтейская


210.7 м2
Общая
120 м2
Жилая
15 м2
Кухня
Продаётся 4 ккв в `Золотом треугольнике`, по адресу: г.Санкт-Петербург, ул.Галерная, д. 34 Квартира, общей площадью 210.7 кв.м, расположена на 5-ом этаже 6-этажного кирпичного дома ТСЖ `Галерная 34` Двухэтажное здание по адресу Красная ул.,34 (ныне — Галерная ул. д. 34), было снесено в 1971 году с условием воссоздания. Проект реконструкции здания разработан по оригинальным чертежам XVIII века компанией ЗАО «Научно-техническая фирма «Строй-Вест». В 2003 году на участке возведён трехэтажный, кирпично-монолитный жилой комплекс с мансардой и подземным паркингом. Построен новый внутренний флигель. Фасад здания XVIII века воссоздан корпорацией «Возрождение». Стиль постройки — ретроспективизм. Дом расположен между Невой и Театральной площадью, в зеленом, светлом, закрытом дворе, во дворе организована парковка. Есть возможность приобрести машиноместо в закрытом паркинге. Круглосуточная охрана обеспечивает безопасность и комфорт проживания. В двух шагах от дома, ограниченный рекой Мойкой, Адмиралтейским и Крюковым каналами, остров «Новая Голландия» — один из самых красивых уголков Петербурга. Недалеко Исаакиевский собор, Мариинский Театр, Николаевский дворец, здания Сената и Синода. Развита инфраструктура района. Рядом с домом расположены музеи, театры, выставочные залы, кинотеатры, многочисленные рестораны, кафе, магазины и гостиницы. В пешей доступности, около 20 минут, две станции метро: Адмиралтейская и Василеостровская. Вокруг расположено 5 школ. Квартира реализуется через электронную торговую площадку. Ипотека и субсидии не подходят.
Цена
61 850 000 ₽

Закажите консультацию специалиста

Оставьте заявку
Нажимая на кнопку «Отправить заявку», Вы даете согласие на обработку своих персональных данных.
×
продажа
Что вы хотите продать?
Сколько комнат?
Тип объекта?
В каком регионе?
В каком районе Санкт-Петербурга
В каком районе Ленинградской области?

Оставьте Ваш контакт и наши специалисты свяжутся с Вами в самые кротчайшие сроки.

+7
×
новостройка
Какие районы Санкт-Петербурга Вас интересуют?
С какой целью Вы планируете приобрести квартиру?
Сколько комнат должно быть в Вашей будущей квартире?
Какой вариант отделки Вам необходим?
Когда Вы хотите заехать?
В какой бюджет хотите уложиться?

Оставьте Ваш контакт и получите подборку квартир без риска столкнуться с мошенничеством и недостроем.

+7
×
сдать
Что вы хотите сдать?
Скольки комнатная квартира?
Какой тип коммерческой недвижимости вы хотите сдать?
В каком регионе?
В каком районе Санкт-Петербурга
В каком районе Ленинградской области?

Оставьте Ваш контакт и наши специалисты свяжутся с Вами в самые кротчайшие сроки.

+7

Продажа квартир и комнат на вторично рынке жилья.

Чтобы купить квартиру в СПб или найти подходящий вариант продажи квартиры в Петербурге на вторичном рынке жилья, требуется потратить много времени и усилий. Квартира или комната в центре Петербурга может быть существенно дороже, чем идентичная по площади в спальном районе. В первую очередь при покупке квартиры в Петербурге надо определиться с ценовой категорией, чтобы затем сосредоточиться на качестве предлагаемого жилья. Чем выше класс недвижимости, тем больше её стоимость. На сайте компании «Русский Фонд Недвижимости» вы найдете все виды вторичного жилья, от дешевых комнат и доступных квартир до элитных квартир в центре города.


Преимущества покупки квартиры на вторичном рынке:

Покупка квартиры или комнаты на вторичном рынке является самым распространенным видом сделок с недвижимостью. Очевидным преимуществом покупки квартиры на вторичном рынке по сравнению с первичным, является то, что эта недвижимость уже существует. Жилье можно посмотреть, оценить плюсы и минусы. Также, преимуществом этого сегмента является большое  разнообразие предложений: широкий выбор по типам домов, годам постройки, расположению. На вторичном рынке можно выбрать квартиру на любой вкус или соответственно финансовой возможности.


Преимущества сотрудничества с «Русским Фондом Недвижимости».

Позвоните нам и убедитесь, что купить квартиру в Петербурге можно  легко, доступно и комфортно! «Русский Фонд Недвижимости» имеет более двух десятков представительств в Санкт-Петербурге и Ленинградской области. Специалисты нашей компании обладают высокой квалификацией, подтверждённой соответствующими сертификатами, и уникальным опытом работы на рынке недвижимости.

  У нас работают только профессионалы,
  Есть  доступ к профессиональным базам данных по недвижимости
Мы проверяем всю документацию, связанную со сделкой купли-продажи

Мы оказываем следующие услуги при операциях с недвижимостью:

  Подбор вариантов и покупка квартиры или комнаты.
  Прямая продажа квартиры  или продажа с встречной покупкой
  Продажа и покупка квартир класса «бизнес», «элита» и «премиум»
  Полное сопровождение сделки:
  Экспертная оценка рыночной стоимости квартиры
  Проверка «чистоты» истории квартиры
  Помощь в оформлении документов
  Консультации по ипотеке и содействие в получение кредита
  Помощь в приватизации
  Расселение коммунальных квартир


Как правильно выбрать квартиру на вторичном рынке.

Рынок вторичной недвижимости часто таит в себе опасности. Купив квартиру, до сих пор можно столкнуться с ситуацией, что на приобретенной жилплощади окажутся приписанными несовершеннолетние дети или недееспособные граждане. Чтобы не оказаться жертвой мошенников, и избежать других проблем и неоправданных затрат времени, следует воспользоваться услугами профессионального риэлторского агентства, такого как, например, «Русский Фонд Недвижимости». Специалисты компании помогут подобрать подходящий вариант и будут сопровождать сделку на всех этапах.

Этот сайт использует файлы cookie для улучшения пользовательского опыта. Cookie - это небольшие текстовые файлы, которые сохраняются на вашем устройстве и помогают нам запоминать ваши предпочтения, анализировать посещаемость сайта и предоставлять более персонализированный контент. Использование файлов cookie позволяет нам сделать сайт удобнее для вас. Политика конфиденциальности
Принять Отказаться