Продажа квартир и комнат

Комнаты
Например: Массальского, 4
Ванные
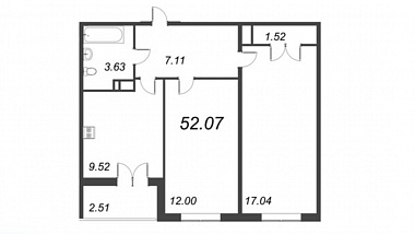
2-х комнатная квартира

Скотное дер., Рождественская ул. м.Парнас


52.07 м2
Общая
29.04 м2
Жилая
9.52 м2
Кухня
Ленинградская область Всеволожский район д. Скотное Новогоднее чудо начинается здесь! Добро пожаловать в современный жилой комплекс, где воплотилась ваша мечта о жизни в гармонии с природой и комфорте современного мира! Что вас ожидает? Жизнь в гармонии с природой. Вас окружают леса и озера, позволяющие насладиться каждым днем на природе, вдали от шума и суеты большого города. Современные стандарты строительства. Каждое здание возведено по индивидуальному проектному решению, выполнено с использованием новейших технологий и материалов. Все для детей. Образовательный центр включает детский сад и школу, игровые площадки и специальные зоны отдыха, созданные специально для маленьких жителей. Активный образ жизни. Спортивные площадки и велодорожки помогут поддерживать физическую форму и активный отдых на свежем воздухе. Покупки в шаговой доступности. Наличие магазинов в шаговой доступности позволит вам забыть о долгих поездках за продуктами и товарами первой необходимости. Комплексный подход к проживанию. Качественный ремонт подъездов, безупречно выполненные инженерные системы и внутридворовые дороги – всё создано для вашего комфорта и удовольствия от проживания. Финансовая поддержка. Возможность оформления ипотечного кредита позволит осуществить мечту о собственном жилье уже сегодня! Хотите вдохнуть глоток свежего воздуха и начать новую жизнь? Жители нашего жилого комплекса получат больше, чем простое жилье – они обретут полноценный уголок комфорта и благополучия, предназначенный для активного образа жизни и семейной идиллии! Не упустите возможность воплотить вашу мечту в реальность – приобретите квартиру в Рождественском квартале и начните новый этап вашей жизни вместе с нами! Звоните и приезжайте посмотреть – мы уверены, вы полюбите наше пространство!
Цена
9 375 000 ₽

2-х комнатная квартира

Всеволожск г., Центральная ул. м.Ладожская


59.3 м2
Общая
32.4 м2
Жилая
10 м2
Кухня
г.Всеволожск ул.Центральная. К продаже предлагается уютная и светлая благоустроенная 2-х комнатная квартира в экологически благополучном районе Всеволожска рядом с сосновым лесом. Дом очень тёплый, с закрытой территорией, подземным паркингом, шлагбаумом на въезд автомобилей, построен в 2015 году. В квартире обе комнаты изолированные 18 м и 14 м, просторная кухня 10 м, раздельные туалет 1.8 и ванна 4.5 м. Выполнен евроремонт, можно заезжать без дополнительных вложений. Также в квартире есть большая лоджия 7 м с прекрасным видом на весь микрорайон. Вид из окна на восточную сторону, на улицу, детский сад Панорамный застекленный балкон 7 метров в общую площадь квартиры не входит. Кухня: тёплый пол Electrolux, пол керамогранит, стены обои, потолок натяжной со встроенными лампочками и люстрой,  варочная поверхность газовая встроенная Bosch, духовка электрическая встроенная Bosch, посудомоечная машина встроенная  Siemens, микроволновка встроенная Hansa Туалет: плитка на стенах и полу Kerama marazzi, потолок реечные металлические панели со встроенными лампочками, унитаз Gustavsberg и инсталляция Grohe Ванная: теплый пол Electrolux, плитка на стенах и потолке Kerama marazzi, потолок реечные металлические панели со встроенными лампочками, ванна акриловая. Коридор: пол паркетная доска, стены обои, потолок натяжной со строенными лампочками Маленький комната: пол паркетная доска, стены обои, потолок натяжной со встроенной люстрой, выход на балкон Большая комната: пол паркетная доска, стены обои, потолок натяжной со встроенной люстрой У дома очень удачное расположение: рядом магазины, аптеки, остановки общественного транспорта, сад, школа, поликлиника, лес, озеро. До жд станции Всеволожская 7 мин на транспорте, до станции метро Ладожская в Санкт-Петербурге 35 мин. Много маршруток и автобусов для передвижения по Всеволожску и до СПб. Два взрослых собственника, полная рыночная стоимость, подходит под ипотеку. Несложная встречная покупка.
Цена
9 200 000 ₽

2-х комнатная квартира

Стрельна г., Гоголя ул. м.Проспект Ветеранов


44.1 м2
Общая
27.5 м2
Жилая
5.4 м2
Кухня
Петродворцовый р-н, по Стрельна. Продаётся 2 ком.квартирав в кирпичом доме на 2 этаже, комнаты смежные, санузел раздельный, балкон застеклен, окна стеклопакеты. Дом расположен не у дороги, окна выходят на тихий зелёный двор. До СПб за  30 минут можно добраться на электричке или  автобусе, Квартира более 5 лет в собственности. Встречная покупка.Сделка нотариальная.
Цена
6 700 000 ₽

Затрудняетесь с выбором?

Не тратьте время на поиск и анализ множества предложений недвижимости
Мы сделаем это за вас профессионально, быстро, предложив оптимальные варианты по выгодной цене!

2-х комнатная квартира

Отрадное г., Вокзальная ул. м.Рыбацкое


43.7 м2
Общая
28.6 м2
Жилая
5 м2
Кухня
Ленинградская область, Кировский район, г. Отрадное, ул. Вокзальная.   Предлагается вашему вниманию двухкомнатная квартира общей площадью 43,7 кв.м  на удобном 3 этаже в пятиэтажном кирпичном доме города Отрадное. Дом находится в 5 минутах от ж/ д станции Ивановская, что очень удобно, для тех кому нужно добираться до работы на общественном транспорте.  Квартира односторонняя. Пластиковые окна выходят во двор. Комнаты (19 и 9,6 кв.м) изолированные, квадратной формы. Кухня 5 кв.м с газовой колонкой, что позволяет без проблем всегда быть с горячей водой. Санузел раздельный. Есть небольшая гардеробная. Прихожая площадью 5,9 кв.м позволяет разместить мебель и не тесниться.    Дом 1966 года постройки. Рядом много магазинов, аптека, почта и Сбербанк. До поликлиники 15 мин пешком. Также по городу ходит маршрутка по расписанию. Город Отрадное находится в 20 км от СПб на берегу Невы. Город с каждым годом преображается, построена новая набережная, экопарк, прогулочные зоны. В городе три школы, 4 детских сада, школа искусств и физкультурно-оздоровительный комплекс.      Один взрослый собственник, в собственности более 5 лет. Встречная покупка подобрана. Быстрый выход на сделку. Подходит под все виды расчетов. Звоните, записывайтесь на просмотр.
Цена
4 200 000 ₽

2-х комнатная квартира

Пискаревский просп. м.Академическая


55.02 м2
Общая
33 м2
Жилая
7.56 м2
Кухня
Продается  2-х квартира по адресу : Пискарёвский проспект д.50 к.2 на 10 /14 этажного дома, дом кирпичный теплый, комнаты изолированные. Площадь комнат 20+13 кв.м. Есть балкон.  В доме 2 лифта, мусоропровод.  Дом на ходится недалеко от ж/д станции Пискаревка, ближайшее метро Академическая. Недалеко много различных магазинов, медицинских учреждений. Квартира требует ремонта, первая продажа, один собственник, встречная покупка.
Цена
10 800 000 ₽

2-х комнатная квартира

Петергоф г., Бобыльская дор. м.Проспект Ветеранов


56.4 м2
Общая
32.1 м2
Жилая
8.5 м2
Кухня
Санкт-Петербург, г. Петергоф, дорога Бобыльская, д.57 Представляем двухкомнатную квартиру в зеленом районе Петергофа. Просторные светлые комнаты, уютная кухня и раздельный санузел создают комфортную атмосферу. Окна выходят на юго-восток, наполняя квартиру светом в первой половине дня. Косметический ремонт оставляет простор для творчества. Вся мебель и техника остаются, включая новый холодильник и стиральную машину. Квартира идеальна для небольшой семьи. В шаговой доступности школа МЧС и вся необходимая инфраструктура. Просмотр возможен по договоренности в удобное время. Один собственник, более пяти лет. Квартира ждет новых хозяев.
Цена
8 800 000 ₽

2-х комнатная квартира

Романовка пос. м.Улица Дыбенко


57.5 м2
Общая
30.8 м2
Жилая
8.2 м2
Кухня
Ленинградская область, Всеволожский район, Романовская волость, пос. Романовка, д.7 Выставленный на продажу лот реализуется посредством электронных торгов. Приобретение возможно исключительно за счет собственных денежных средств. Проведение торгов подчиняется нормам федерального законодательства, что гарантирует юридическую чистоту и безопасность сделки. Мы придерживаемся принципа индивидуального подхода, сопровождая интересы только одного клиента по каждому объекту. Это позволяет добиться максимально выгодных условий приобретения. Наша компания обеспечивает полное сопровождение сделки на всех этапах, вплоть до оформления права собственности на ваше имя. Воспользуйтесь шансом совершить выгодную покупку! Свяжитесь с нами прямо сейчас, чтобы записаться на консультацию. Срок действия предложения ограничен.
Цена
3 088 000 ₽

2-х комнатная квартира

Большой Смоленский просп. м.Елизаровская


65.55 м2
Общая
27.72 м2
Жилая
14.35 м2
Кухня
Большой Смоленский 30/1 2-комнатная квартира в доме бизнес-класса Главная спальня 18,27 м² Вторая комната 9,45 м² ( можно увеличить при перепланировке) Просторная кухня 14,35 м²( при добавление кладовки 16.7) – территория для воплощения кулинарных фантазий Раздельный санузел – практичность в каждой детали Безопасность и комфорт как образ жизни Строгий контроль доступа с электронными ключами Круглосуточное видеонаблюдение Современная система пожарной безопасности Расположение в сердце развитого района: Всего 400 метров до живописного Палехского парка 3 км до исторического центра города Развитая инфраструктура в шаговой доступности: школы, детские сады, поликлиники Торговые центры и гипермаркет Ашан рядом с домом Удобная транспортная доступность уже и перспектива открытия второго входа станции метро Елизаровская Эксклюзивность, достойная внимания: Престижный дом всего на 50 квартир Уютная атмосфера благодаря единственной парадной Возможность персонализации – от замены остекления до выбора отделки Подземный паркинг и кладовые помещения для вашего удобства
Цена
23 800 000 ₽

2-х комнатная квартира

Большой Смоленский просп. м.Елизаровская


56.4 м2
Общая
25.42 м2
Жилая
13.05 м2
Кухня
Большой Смоленский просп 30/1 2-комнатная квартира в доме бизнес-класса! Просторная планировка: Спальня 14,17 м² с выходом на застекленную лоджию 4 м² Спальня 11,25 м² – можно сделать выход на лоджию Кухня 13,05 м² – пространство для кулинарных шедевров Раздельный санузел – дополнительное удобство для всей семьи Подземный паркинг на 26 машино-мест Кладовые помещения на каждом этаже Безопасность и комфорт: Круглосуточный контроль доступа с электронными ключами Видеонаблюдение Пожарная сигнализация Престижное расположение: 3 км до площади Александра Невского 400 метров до Палехского парка Развитая инфраструктура: детские сады, школы, поликлиники Торговые центры и Ашан в шаговой доступности Перспектива открытия второго входа станции метро Елизаровская Эксклюзивность предложения: Дом премиум-класса всего на 50 квартир Одна парадная – ощущение приватности и спокойствия Остекление с шумоподавлением Возможность замены остекления лоджии на теплое Возможность дозаказа отделки Не упустите шанс стать владельцем квартиры в одном из самых престижных районов города!
Цена
20 110 000 ₽

2-х комнатная квартира

Ломоносов г., Красноармейская ул. м.Кировский завод


45.6 м2
Общая
29 м2
Жилая
5 м2
Кухня
Вид из окон - зеленый двор! Рядом вся инфраструктура, удобное транспортное сообщение!
Цена
5 300 000 ₽

2-х комнатная квартира

Димитрова ул. м.Купчино


62.1 м2
Общая
35 м2
Жилая
12 м2
Кухня
Современная 2-х комнатная кв-ра в кирпично-монолитном доме ЖК `Кассиопея`. В квартире сделан качественный евроремонт, окна с видом на улицу и в тихий уютный двор, застекленная лоджия. Кухня - 12 кв.м., есть изолированная гардеробная - 4 кв.м. Квартира находится в 4-й парадной ( вход с улицы и со двора , 3 лифта, 4 квартиры на площадке). В доме установлено видеонаблюдение, работает круглосуточная диспетчерская!
Цена
15 500 000 ₽

2-х комнатная квартира

Ломоносов г., Александровская ул. м.Автово


58.7 м2
Общая
35 м2
Жилая
8 м2
Кухня
Продается обьект недвижимости 2-кв по адресу ,г СПБ ,г,Ломоносов ,ул Александровская 20/16 ,1/4 этаж ,Просторная двухкомнатная квартира в центре Ломоносова ,комнаты изолированные 20+15,с просторной кухней 8м2,с/у раздельный ,кладовка, Квартира двухсторонняя ,теплая ,хорошие соседи ,,Очень удобное месторасположение рядом магазины ,детский сад,школа ,Помощь в оформлении ипотеки ,Просмотры по договоренности заранее ,Документы готовы ,без обременении,Прямая продажа ,
Цена
6 490 000 ₽

Закажите консультацию специалиста

Оставьте заявку
Нажимая на кнопку «Отправить заявку», Вы даете согласие на обработку своих персональных данных.
×
продажа
Что вы хотите продать?
Сколько комнат?
Тип объекта?
В каком регионе?
В каком районе Санкт-Петербурга
В каком районе Ленинградской области?

Оставьте Ваш контакт и наши специалисты свяжутся с Вами в самые кротчайшие сроки.

+7
×
новостройка
Какие районы Санкт-Петербурга Вас интересуют?
С какой целью Вы планируете приобрести квартиру?
Сколько комнат должно быть в Вашей будущей квартире?
Какой вариант отделки Вам необходим?
Когда Вы хотите заехать?
В какой бюджет хотите уложиться?

Оставьте Ваш контакт и получите подборку квартир без риска столкнуться с мошенничеством и недостроем.

+7
×
сдать
Что вы хотите сдать?
Скольки комнатная квартира?
Какой тип коммерческой недвижимости вы хотите сдать?
В каком регионе?
В каком районе Санкт-Петербурга
В каком районе Ленинградской области?

Оставьте Ваш контакт и наши специалисты свяжутся с Вами в самые кротчайшие сроки.

+7

Продажа квартир и комнат на вторично рынке жилья.

Чтобы купить квартиру в СПб или найти подходящий вариант продажи квартиры в Петербурге на вторичном рынке жилья, требуется потратить много времени и усилий. Квартира или комната в центре Петербурга может быть существенно дороже, чем идентичная по площади в спальном районе. В первую очередь при покупке квартиры в Петербурге надо определиться с ценовой категорией, чтобы затем сосредоточиться на качестве предлагаемого жилья. Чем выше класс недвижимости, тем больше её стоимость. На сайте компании «Русский Фонд Недвижимости» вы найдете все виды вторичного жилья, от дешевых комнат и доступных квартир до элитных квартир в центре города.


Преимущества покупки квартиры на вторичном рынке:

Покупка квартиры или комнаты на вторичном рынке является самым распространенным видом сделок с недвижимостью. Очевидным преимуществом покупки квартиры на вторичном рынке по сравнению с первичным, является то, что эта недвижимость уже существует. Жилье можно посмотреть, оценить плюсы и минусы. Также, преимуществом этого сегмента является большое  разнообразие предложений: широкий выбор по типам домов, годам постройки, расположению. На вторичном рынке можно выбрать квартиру на любой вкус или соответственно финансовой возможности.


Преимущества сотрудничества с «Русским Фондом Недвижимости».

Позвоните нам и убедитесь, что купить квартиру в Петербурге можно  легко, доступно и комфортно! «Русский Фонд Недвижимости» имеет более двух десятков представительств в Санкт-Петербурге и Ленинградской области. Специалисты нашей компании обладают высокой квалификацией, подтверждённой соответствующими сертификатами, и уникальным опытом работы на рынке недвижимости.

  У нас работают только профессионалы,
  Есть  доступ к профессиональным базам данных по недвижимости
Мы проверяем всю документацию, связанную со сделкой купли-продажи

Мы оказываем следующие услуги при операциях с недвижимостью:

  Подбор вариантов и покупка квартиры или комнаты.
  Прямая продажа квартиры  или продажа с встречной покупкой
  Продажа и покупка квартир класса «бизнес», «элита» и «премиум»
  Полное сопровождение сделки:
  Экспертная оценка рыночной стоимости квартиры
  Проверка «чистоты» истории квартиры
  Помощь в оформлении документов
  Консультации по ипотеке и содействие в получение кредита
  Помощь в приватизации
  Расселение коммунальных квартир


Как правильно выбрать квартиру на вторичном рынке.

Рынок вторичной недвижимости часто таит в себе опасности. Купив квартиру, до сих пор можно столкнуться с ситуацией, что на приобретенной жилплощади окажутся приписанными несовершеннолетние дети или недееспособные граждане. Чтобы не оказаться жертвой мошенников, и избежать других проблем и неоправданных затрат времени, следует воспользоваться услугами профессионального риэлторского агентства, такого как, например, «Русский Фонд Недвижимости». Специалисты компании помогут подобрать подходящий вариант и будут сопровождать сделку на всех этапах.

Этот сайт использует файлы cookie для улучшения пользовательского опыта. Cookie - это небольшие текстовые файлы, которые сохраняются на вашем устройстве и помогают нам запоминать ваши предпочтения, анализировать посещаемость сайта и предоставлять более персонализированный контент. Использование файлов cookie позволяет нам сделать сайт удобнее для вас. Политика конфиденциальности
Принять Отказаться