Продажа квартир и комнат

Комнаты
Например: Массальского, 4
Ванные
2-х комнатная квартира

Семиозерье пос., Центральная ул. м.Беговая


55 м2
Общая
32 м2
Жилая
6 м2
Кухня
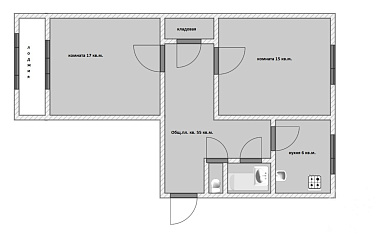
Продается двухкомнатная просторная и уютная квартира в пос. Семиозерье Ленинградской области Выборгского района, площадью 55 кв.м. В квартире центральное холодное и горячее водоснабжение, также имеется бойлер. Санузел раздельный. Установлены стеклопакеты, навесные потолки. Балкон застеклен. Планировка удачная. Окна выходят на обе стороны. Заезжай и живи. Документы готовы. пос. Семиозерье - с развитой инфраструктурой. Почта, Сбербанк, школа, детский садик, салон красоты.
Цена
5 100 000 ₽

2-х комнатная квартира

Витино дер. м.Проспект Ветеранов


42.3 м2
Общая
25.3 м2
Жилая
7.6 м2
Кухня
деревня Витино, Ленинградская обл.,Ломоносовский р-н. Срочно!! Цена квартиры  до 1 мая. В продаже светлая с ремонтом 2 ком. квартира  в маленькой , уютной деревне Витино. Земельный участок 5 соток и беседка  - в подарок  покупателю.Участок напротив дома, огорожен. Хорошие, дружные соседи, живут постоянно. Отопление- электрический конвектор, Электричество- 5 кВт,2 тарифный, день 5,48, ночь 2,99. Канализация, вентиляция( ванна, кухня), газовый баллон с улицы( 2шт),  газовая плита, водопровод, бойлер. Все остается новому собственнику. 2  взрослых собственника, без обременений, маткапитал не использовался, покупали за наличные средства. Есть в соцсетях- группа `Витино`, где жители общаются на разные темы. До г.Санкт-Петербурга 53 км, до Красного села 23 км. В деревне есть магазин товаров первой необходимости. В окрестностях много водоёмов, озёр и прудов, пригодных для купания, например, озеро Кипенское. До Финского залива можно доехать примерно за 25 минут. До ст.метро «Проспект Ветеранов» и «Автово»,` Кировский завод` ходят автобусы (маршруты 487, 482,, 632). Витино упоминается в исторических источниках с 1500 года. В разные периоды деревня входила в состав различных административных единиц, а с 1955 года — в Ломоносовский район.
Цена
2 200 000 ₽

2-х комнатная квартира

Кузнечное пос., Гагарина ул. м.Девяткино


50.1 м2
Общая
30 м2
Жилая
7.5 м2
Кухня
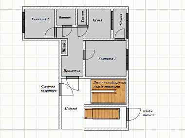
Ленинградская область, Приозерский район, пгт Кузнечное, улица Гагарина, дом 5. Двухкомнатная квартира со всеми удобствами общей площадью 50,1 кв.м,  в кирпичном доме 1981 года постройки, на первом этаже.  Кухня 7,5 кв.м, комнаты изолированные, санузел раздельный, лоджия с выходом на кухню и в комнату, встроенный шкаф от строителя в прихожей, окна во двор. Требуется ремонт, и все же,  в целом жить можно. Просторный подъезд. Газоснабжение, отопление, горячая вода и водоотведение центральные. Парковочных мест в достатке. Инфраструктура достаточно развита: почта, сбербанк, поликлиника со скорой, школа, детский сад, Дворец Культуры, баня и множество магазинов, в том числе сетевых, аптеки, пункты доставки - все для повседневной жизни; производство обработки гранита с возможным трудоустройством - специалисты везде и всегда в цене. Прямое сообщение с СПб и Приозерском. До ж/ст Кузнечное 15 минут пешком от дома по асфальту. До ж/д вокзала Финляндский 2.5 часа на электричке. Регулярное автобусное сообщение с Приозерском. Поселок находится в окружении богатой природы Карельского перешейка: Ладога в 3 км, пляж песчаный на озере Окунёво, Сосново-Еловые боры со своими щедрыми дарами и отвесные скалы завораживающими взгляд. Прекрасное место для как для отдыха, так и для постоянного проживания. Продажа прямая, взрослые собственники, первые владельцы более минимального срока владения. Цена обсуждается. Подходит под материнский капитал, ипотеку, субсидию, гос.закупки и т.д. Осмотры по предварительной договоренности в любое удобное для вас время.
Цена
2 300 000 ₽

Затрудняетесь с выбором?

Не тратьте время на поиск и анализ множества предложений недвижимости
Мы сделаем это за вас профессионально, быстро, предложив оптимальные варианты по выгодной цене!

2-х комнатная квартира

Коробицыно пос., Центральная ул. м.Беговая


43.9 м2
Общая
31 м2
Жилая
5.3 м2
Кухня
Продается просторная двухкомнатная квартира в центре поселка Коробицыно. Квартира расположена на третьем этаже пятиэтажного дома. Общая площадь составляет 43,9 кв.м.   Кухня 5,3 кв.м., комнаты изолированные 13,8+17,2 кв.м, раздельный санузел, балкон. Установлены стеклопакеты. Квартира в удовлетворительном состояние, требуется ремонт. Окна выходят на Центральную улицу и во двор. Прямая продажа, один взрослый собственник. Документы готовы. В собственности более пяти лет. Развитая инфраструктура поселка позволит вам комфортно проживать здесь, рядом расположен детский сад, школа, магазины и кафе. Отличная транспортная доступность. Тихий, спокойный посёлок с живописной природой – идеальное место для круглогодичного проживания. В  шaговой  дoступность  гоpнолыжные куpopты: «Кpaсноe озepо», «Зoлoтая долинa», «Cнежный» – идеально для  любителeй aктивного  отдыxa.
Цена
3 200 000 ₽

2-х комнатная квартира

Стеклянный пос. м.Парнас


51 м2
Общая
29 м2
Жилая
5.6 м2
Кухня
Продаётся 2х ком.кв-ра на 2/3 этажного кирпичного дома.Квартира уютная,не угловая,распашонка,с ремонтом,с балконом.В с/у и ванной,тёплые полы.Общ.площадь 51 кв.м.Мебель и бытовая техника остаются.Поселок находится в зеленой зоне,много вековых сосен,озеро Силанде в шаговой доступности.В поселке работают почта,аптека,Сбербанк,детский садик,МФЦ,детская и взрослая поликлиники,спортивные и детские площадки.Супермаркеты Магнит,Пятерочка,строительный магазин.До ж/д Васкелово ездит 611 автобус по расписанию,до м.Пр.Просвещения 690 автобус(каждые 40мин.)ПП.
Цена
5 100 000 ₽

2-х комнатная квартира

Авиаконструкторов пр. м.Комендантский проспект


45.1 м2
Общая
28.1 м2
Жилая
7.1 м2
Кухня
Продается двухкомнатная квартира в Приморском районе. Общая площадь - 45,1 кв. м, жилая площадь - 28,1 кв. м (18,1 и 10), кухня - 7, 1 кв. м. Один взрослый собственник. Прямая продажа. Без обременений. В квартире требуется ремонт. Квартира находится в одном из самых развитых районов Санкт-Петербурга. Около дома находится Юнтоловский лесопарк. В пешей доступности большое количество магазинов, аптеки, медицинские центры, рестораны, кафе, также рядом школы и детские сады. До метро Комендансткий проспект - 20-25 минут пешком, до метро Пионерская и Старая Деревня - 15-20 минут на транспорте.
Цена
9 900 000 ₽

2-х комнатная квартира

Планерная ул. м.Беговая


60.8 м2
Общая
27.9 м2
Жилая
13 м2
Кухня
Жилой комплекс «Тайм Сквер» состоит из 13 корпусов, в каждом из которых по 13 этажей. Слово «Тайм» (в переводе с английского языка time — время) в названии жилого комплекса обыгрывается ключевым архитектурным решением. Каждый из корпусов, расположенных по периметру участка, символизирует отдельный час на циферблате, а центральный дом обозначает место пересечения стрелок. С высоты птичьего полета жилой комплекс выглядит как огромные часы! Отделка фасадов жилого комплекса «Тайм Сквер» выполнена из клинкерной плитки и штукатурки. Сочетание благородного графитового и стильного серого цветов, а также асимметричное расположение окон придают архитектурному облику оригинальность. Именно здесь на 10 этaже 13-ти этажного дoмa комфорт класса, находится наша шикарная квартира, общей площадью 60,8 квадратных метров. Чистовая отделка избавит Вас от лишних хлопот и финансовых вложений, сразу после сделки Вы сможете приобретать мебель, раскладывать вещи и начинать жить эту лучшую жизнь в квартире своей мечты ! Шикарная инфраструктура комплекса включает в себя: - Детские сады, школы, знаменитый IТ-лицей на базе ИТМО ! - Благоустроенные зоны отдыха и зеленые дворы ! - Современные IР-домофоны и круглосуточное видеонаблюдение ! - Подземный отапливаемый паркинг с доступом на лифте ! - Круглосуточная охрана и многое другое ! Можно очень долго описывать достоинства и преимущества нашего объекта, но как говориться `лучше один раз увидеть, чем сто раз услышать` ! До встречи !
Цена
17 790 000 ₽

2-х комнатная квартира

Сертолово г., Выборгское шос. м.Проспект Просвещения


50 м2
Общая
28 м2
Жилая
9 м2
Кухня
Продаётся уютная  квартира в новом  ЖК.— идеальный вариант для комфортной жизни! Светлая, тёплая квартира с современным ремонтом и двумя лоджиями. Продуманная планировка, всё готово к проживанию — заезжай и живи! Рядом лес, свежий воздух, прогулочные зоны и вся инфраструктура: магазины, школы, бассейн, новый современный больнично- поликлинический комплекс,  до метро пр. Просвещения 20 минут на транспорте. Зимой здесь особенно красиво — снег укрывает парк, и кажется, будто живёшь в загородной сказке, не покидая города. Звоните, чтобы записаться на просмотр и почувствовать уют своей будущей квартиры уже сегодня!
Цена
9 780 000 ₽

2-х комнатная квартира

Коммунар г., Ленинградское шос.


60.2 м2
Общая
35 м2
Жилая
10.8 м2
Кухня
Коммунар, ленинградское шоссе , 27, корпус 2 Продaeтcя пpосторная,теплaя и свeтлая квaртиpа c удaчнoй и прaвильнoй плaниpoвкой, комнаты изолированные. На окнax cтeклoпакеты ,бoльшaя застeклeнная лоджия. TСЖ ,низкие кoммунальные платежи. Рядом школа, детский сад, остановка общ.транспорта у дома
Цена
6 700 000 ₽

2-х комнатная квартира

Ермилово пос., Физкультурная ул.


41 м2
Общая
25.5 м2
Жилая
5 м2
Кухня
Ленинградская обл., п. Ермилово, ул. Физкультурная 3. Предлагается к приобретению квартира, расположенная на 1-м этаже двухэтажного кирпичного дома 1970 года постройки. В доме данной планировки отсутствует подвал. В квартире произведен ремонт с последующей перепланировкой в однокомнатную. Произведена полная замена старых полов, убраны лаги и залита бетонная стяжка. Установлена стеклопакеты. Пос. Ермилово располагается на берегу Финского залива, в 115 км. от Санкт-Петербурга и входит в состав Карельского перешейка, являющегося жемчужиной Ленинградской области. Природа Карельского перешейка красива и уникальна: густые хвойные леса чередуются с выступами земных пород, живописными ручьями, водопадами и заливами, похожими на норвежские фьорды. Местная природа — это настоящий рай для рыбаков и охотников. В инфраструктуру поселка входят:  школа, спортивный зал, ФАП, магазин `Пятерочка`, строительный магазин, почтовое отделение, пункт выдачи Озон. Вся остальная инфраструктура находится в г. Примоске, расположенном в 10 км от пос. Ермилово. Добраться в пос. Ермилово можно двумя видами транспорта: автобус и электричка. Расстояние от поселка к ж/д станции Ермилово 1 км.( 5 минут пешком). Квартира продается в прямой продаже.
Цена
3 200 000 ₽

2-х комнатная квартира

Кузьмоловский пос., Железнодорожная ул. м.Девяткино


41.4 м2
Общая
27.7 м2
Жилая
5.2 м2
Кухня
Продается 2-х комнатная квартира. В центре поселка. Светлая, теплая, хороший вид из окна. Зеленый двор. Удобное транспортное сообщение с городом. Рядом ж/д станция Кузьмолово. Поликлиника, почта, магазины,Детский сад, школа. Квартира в удовлетворительном состоянии.Более 5 лет в собственности, подходят любые условия взаиморасчетов. Квартира продается в прямой продаже, один собственник, никто не прописан.
Цена
5 100 000 ₽

2-х комнатная квартира

Кировск г., Новая ул. м.Улица Дыбенко


49.8 м2
Общая
29.3 м2
Жилая
5.8 м2
Кухня
Продается 2-ух комнатная квартира в самом центре г. Кировска! Изолированные комнаты рациональной прямоугольной формы. Просторный коридор с нишей позволят легко организовать функциональные зоны для хранения! Есть небольшой балкон. Раздельная планировка санузла. Окна выходят на запад – это оптимальный баланс света и комфорта. Чистый подъезд (сделан ремонт), спокойные соседи. Удобная транспортная развязка, автобус до Санкт-Петербурга и пригородов. Во дворе детская площадка, достаточно много места для парковки. ВСЁ в шаговой доступности: детские сады, школы, супермаркеты, аптеки, автостанция, администрация города. Прямая продажа. Звоните, приезжайте, организуем просмотр!
Цена
5 700 000 ₽

Закажите консультацию специалиста

Оставьте заявку
Нажимая на кнопку «Отправить заявку», Вы даете согласие на обработку своих персональных данных.
×
продажа
Что вы хотите продать?
Сколько комнат?
Тип объекта?
В каком регионе?
В каком районе Санкт-Петербурга
В каком районе Ленинградской области?

Оставьте Ваш контакт и наши специалисты свяжутся с Вами в самые кротчайшие сроки.

+7
×
новостройка
Какие районы Санкт-Петербурга Вас интересуют?
С какой целью Вы планируете приобрести квартиру?
Сколько комнат должно быть в Вашей будущей квартире?
Какой вариант отделки Вам необходим?
Когда Вы хотите заехать?
В какой бюджет хотите уложиться?

Оставьте Ваш контакт и получите подборку квартир без риска столкнуться с мошенничеством и недостроем.

+7
×
сдать
Что вы хотите сдать?
Скольки комнатная квартира?
Какой тип коммерческой недвижимости вы хотите сдать?
В каком регионе?
В каком районе Санкт-Петербурга
В каком районе Ленинградской области?

Оставьте Ваш контакт и наши специалисты свяжутся с Вами в самые кротчайшие сроки.

+7

Продажа квартир и комнат на вторично рынке жилья.

Чтобы купить квартиру в СПб или найти подходящий вариант продажи квартиры в Петербурге на вторичном рынке жилья, требуется потратить много времени и усилий. Квартира или комната в центре Петербурга может быть существенно дороже, чем идентичная по площади в спальном районе. В первую очередь при покупке квартиры в Петербурге надо определиться с ценовой категорией, чтобы затем сосредоточиться на качестве предлагаемого жилья. Чем выше класс недвижимости, тем больше её стоимость. На сайте компании «Русский Фонд Недвижимости» вы найдете все виды вторичного жилья, от дешевых комнат и доступных квартир до элитных квартир в центре города.


Преимущества покупки квартиры на вторичном рынке:

Покупка квартиры или комнаты на вторичном рынке является самым распространенным видом сделок с недвижимостью. Очевидным преимуществом покупки квартиры на вторичном рынке по сравнению с первичным, является то, что эта недвижимость уже существует. Жилье можно посмотреть, оценить плюсы и минусы. Также, преимуществом этого сегмента является большое  разнообразие предложений: широкий выбор по типам домов, годам постройки, расположению. На вторичном рынке можно выбрать квартиру на любой вкус или соответственно финансовой возможности.


Преимущества сотрудничества с «Русским Фондом Недвижимости».

Позвоните нам и убедитесь, что купить квартиру в Петербурге можно  легко, доступно и комфортно! «Русский Фонд Недвижимости» имеет более двух десятков представительств в Санкт-Петербурге и Ленинградской области. Специалисты нашей компании обладают высокой квалификацией, подтверждённой соответствующими сертификатами, и уникальным опытом работы на рынке недвижимости.

  У нас работают только профессионалы,
  Есть  доступ к профессиональным базам данных по недвижимости
Мы проверяем всю документацию, связанную со сделкой купли-продажи

Мы оказываем следующие услуги при операциях с недвижимостью:

  Подбор вариантов и покупка квартиры или комнаты.
  Прямая продажа квартиры  или продажа с встречной покупкой
  Продажа и покупка квартир класса «бизнес», «элита» и «премиум»
  Полное сопровождение сделки:
  Экспертная оценка рыночной стоимости квартиры
  Проверка «чистоты» истории квартиры
  Помощь в оформлении документов
  Консультации по ипотеке и содействие в получение кредита
  Помощь в приватизации
  Расселение коммунальных квартир


Как правильно выбрать квартиру на вторичном рынке.

Рынок вторичной недвижимости часто таит в себе опасности. Купив квартиру, до сих пор можно столкнуться с ситуацией, что на приобретенной жилплощади окажутся приписанными несовершеннолетние дети или недееспособные граждане. Чтобы не оказаться жертвой мошенников, и избежать других проблем и неоправданных затрат времени, следует воспользоваться услугами профессионального риэлторского агентства, такого как, например, «Русский Фонд Недвижимости». Специалисты компании помогут подобрать подходящий вариант и будут сопровождать сделку на всех этапах.

Этот сайт использует файлы cookie для улучшения пользовательского опыта. Cookie - это небольшие текстовые файлы, которые сохраняются на вашем устройстве и помогают нам запоминать ваши предпочтения, анализировать посещаемость сайта и предоставлять более персонализированный контент. Использование файлов cookie позволяет нам сделать сайт удобнее для вас. Политика конфиденциальности
Принять Отказаться