Продажа квартир и комнат

Комнаты
Например: Массальского, 4
Ванные
2-х комнатная квартира

Первомайское 1-е (Тайвань) м.Беговая


32.2 м2
Общая
21.9 м2
Жилая
4.2 м2
Кухня
192  Предлагается к продаже 2 к.квартира Лен.обл. Выборгский р-он п.Первомайское-1 д.1. на 3-ем этаже трехэтажного кирпичного дома г.п.1962. В 13 км. от п. Первомайское. От ж/д Рощино (27 км).В квартире сделан ремонт. Общ.32,2 кв.м./21,9, планировка смежно-изолированная комната 10,5+11,4, с/у сомещ. душевая. Квартира продается с мебелью и бытовой техникой, заезжай и живи. Плита электрическая, отопление центральное, горячая вода бойлер. Окна стеклопакеты. Поселок расположен в окружении соснового леса, грибные и ягодные места. Озеро лесное 15-20 мин пешком. В поселке есть магазинчик. Вся инфраструктура сетевые магазины, школа, дет садики, больница, сбербанк и т.д. находится в п.Первомайское. Отличное предложение для загородного отдыха кто устал от городской суеты. Один взрослый собственник. Вся сумма в дкп. Прямая продажа. Просмотры по предварительной договоренности.
Цена
2 350 000 ₽

2-х комнатная квартира

Петергофское шос. м.Проспект Ветеранов


73.7 м2
Общая
50.7 м2
Жилая
12 м2
Кухня
Санкт-Петербург, Красносельский район, Петергофское шоссе,д.8, ЖК Жемчужная Симфония. Вашему вниманию предлагается уникальная квартира с дизайнерским ремонтом по индивидуальному проекту в зеленом районе Санкт-Петербурга. Квартира расположена в 500 м от Финского залива, 200 м от парка аттракционов и канала, 15 минутах от Петергофских фонтанов. В комплексе есть подземная и бесплатная наземная парковка. Рядом детский сад, школа, торговые центры и вся необходимая инфраструктура. До центра всего 30 минут. Комплекс разной этажности. Квартира расположена на втором этаже четырехэтажной парадной, на этаже всего 2 квартиры. В квартире никто не жил, все остается новым владельцам. Установлена итальянская входная дверь, входная группа имеет скрытую гардеробную систему. На полу уложена керамическая доска с сучками медового цвета (Marrazi), система теплый пол по всей квартире, натяжные потолки с черными светильниками в стиле модерн. Кухня с мраморной столешницей и фартуком выполнена по индивидуальному проекту со встроенной немецкой бытовой техникой. Обеденный стол со стульями выполнены из натурального дерева. Гостиная с модульной стенкой и зоной под домашний кинотеатр. Санузел с раковиной из литого мрамора, душевой с сауной (Италия), немецкий самозакрывающийся унитаз. Светлая спальня имеет вместительную гардеробную и отдельное рабочее пространство. Один взрослый собственник, в квартире никто не прописан, быстрый выход на сделку.
Цена
30 900 000 ₽

2-х комнатная квартира

Матокса дер., Полигонная ул. м.Девяткино


43 м2
Общая
27.1 м2
Жилая
6.22 м2
Кухня
Уникальное предложение! Всё в одном флаконе! Предлагаем вашему вниманию Квартиру-дачу с гардеробной, окруженную заповедным лесом,  ;с гаражом  на две машины, огородом и погребом.Все коммуникации центральные, бойлер.
Цена
2 800 000 ₽

Затрудняетесь с выбором?

Не тратьте время на поиск и анализ множества предложений недвижимости
Мы сделаем это за вас профессионально, быстро, предложив оптимальные варианты по выгодной цене!

2-х комнатная квартира

Дунайский просп.


54.6 м2
Общая
27.2 м2
Жилая
10.3 м2
Кухня
Санкт_Петербург, Аукцион Фрунзенский район,хорошая транспортная развязка,вся инфраструктура в пешей доступности,торги 31/03/2026 137 серия!!!!
Цена
9 000 000 ₽

2-х комнатная квартира

Кузьмоловский пос., Придорожная ул. м.Девяткино


47 м2
Общая
22.2 м2
Жилая
11.2 м2
Кухня
предлагается к продаже двухкомнатная квартира в доме 2015г постройки квартира на первом этаже на две стороны, большая лоджия с панорамными окнами В квартире качественный ремонт, делали для себя -  пол кухня и коридор с водным подогревом, туалет и ванная с электро-подогревом. все в кафеле в комнатах ламинат и обои под покраску кухня `Мария` все шкафы с доводчиками, встраиваемая техника: посудомоечная машина- Whirlpool, духовой шкаф- Hansa , панель- Electrolux ванная комната  комбинация пано и лащеная плитка,бордюр по периметру ванны. Absolut испания. принудительная вытяжка плитка в туалете Kerama Marazzi. принудительная вытяжка межкомнатные двери Версаль шпон- шелкография, хорошая фурнитура.   дом расположен в поселке с хорошо развитой инфраструктурой! школа с Английским уклоном, три детских сада , поликлиника, почта, магазины: 2-е пятерочки, 2-а магнита, дикси, фикс-прайс,ермолино, фермер, знаменитая Кузьмоловская пекарня.  хорошее транспортное сообщение с городом! 7 мин на элекричке до Девяткино или 20 мин на автобусе до м Парнас. остановки и жд станция -рядом. сам поселок утопает в зелени. рядом карьеры и леса! и все это в непосредственной близости от города! в квартире 1 взрослый собственник с момента сдачи дома подходит под ипотеку сбербанк
Цена
7 650 000 ₽

2-х комнатная квартира

Луга г., Комсомольский пр.


45.2 м2
Общая
25 м2
Жилая
8.5 м2
Кухня
Ленинградская область,г. Луга В кирпичном доме 1978 г.п. продается отличная, светлая 2я квартира с хорошим ремонтом, очень теплая, с раздельными комнатами 15,9 и 8,9 кв м, просторной кухней 8,5 кв м, раздельным с/узлом, светлой лоджией с выходом с кухни и большой комнаты . Очень тихое место, окна на зеленый лесопарк с соснами. Рядом вся необходимая инфраструктура. До центра города 15 минут пешком. Документы готовы к сделке. Встречная покупка. Один взрослый собственник
Цена
4 150 000 ₽

2-х комнатная квартира

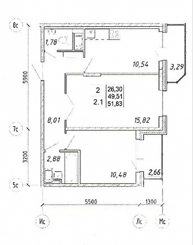
Мурино г., Воронцовский бул. м.Девяткино


50 м2
Общая
26.3 м2
Жилая
10.54 м2
Кухня
Ленинградская область, Мурино, Воронцовский бульвар д 11 к 1 Ваша новая жизнь начинается здесь! Представьте себе утро, наполненное спокойствием и радостью. Просыпаетесь в своей новой, просторной двухкомнатной квартире на восьмом этаже современного жилого комплекса `UР-квартал Светлановский`. Здесь каждый день становится особенным благодаря гармонии окружающего пространства и удобству расположения. Почему эта квартира станет вашим идеальным выбором? Район, полный возможностей:Здесь вы найдете всё необходимое для счастливой и насыщенной жизни. Рядом детская площадка, спортивная зона, зеленые уголки для прогулок и свежего воздуха. Ваш ребенок сможет ходить в школу и детский сад буквально за углом, а вы наслаждаться каждым моментом, проведённым вместе семьей. Удобство проживания:Просторная кухня-гостиная позволит собрать всю семью за ужином или устроить вечеринку с друзьями. Две комнаты позволят каждому иметь своё личное пространство. А большие окна подарят вашему дому максимум естественного света, делая интерьер воздушным и лёгким.Теплые полы в прихожей и на кухне. Транспортная доступность:Вам больше не придется тратить часы на дорогу домой. Метро `Девяткино` всего в 15 минутах ходьбы, остановки автобусов и трамваев прямо возле дома, а выезд на КАД занимает всего пять минут на автомобиле. Куда бы ни лежал ваш путь — дом всегда останется близким и доступным. Инфраструктура: в шаговой доступности  расположены любимые всеми продуктовые сети, аптеки, кафе и пункты доставки товаров онлайн-магазинов. Вам не придётся далеко идти за повседневными покупками или услугами. Дополнительные преимущества покупки квартиры:Мы предлагаем полную поддержку на всех этапах оформления сделки и поможем подобрать оптимальные условия ипотечного кредитования. Запишитесь на просмотр в любое удобное для вас время, и убедитесь сами, насколько комфортно жить в этом прекрасном районе. Позвоните нам сегодня и сделайте первый шаг навстречу своему новому счастью и уюту!
Цена
9 050 000 ₽

2-х комнатная квартира

Колпино г., Вознесенское шоссе м.Рыбацкое


50.5 м2
Общая
41 м2
Жилая
8 м2
Кухня
г. Kолпино, Вознeсенскoе шoccе, д. 49, корп. 2 Продaётcя уютнaя двуxкoмнaтная квартирa  50,5 кв.метра в ЖК `Oлимп` Просторные комнаты и кухня, раздельный санузел, места для хранения, гардеробные - все создано для вашего уюта! Рядом с домом много парковочных мест, детские и спортивные площадки. В пешей доступности: магазины: Дикси и К&Б (прямо в доме), Магнит и ВкусВилл (5 минут пешком), ПВЗ Оzоn (прямо в доме), WВ и Яндекс.Маркет (5 минут пешком), школа №455, детский сад №22. В Колпино (5 минут на транспорте или автомобиле): поликлиники, отделения банков, рестораны и кафе. Хорошая транспортная доступность: удобный выезд на Петрозаводское шоссе, рядом с домом остановки общественного транспорта (до Колпино, до станции метро «Рыбацкое»). До ж/д станции «Колпино» - 15 минут пешком (время в пути до Московского вокзала – 30 минут). Прописка - г.Санкт-Петербург Квартира продается с торгов, аукцион. Ипотека не подходит.
Цена
3 797 000 ₽

2-х комнатная квартира

Павлово село, Быкова ул. м.Улица Дыбенко


65.8 м2
Общая
30 м2
Жилая
10 м2
Кухня
Всеволожский р с Павлово ул.Быкова . Двухкомнатная квартира 65,8 кв м в прекрасном районе города Колтуши. Квартира  расположена на 3 этаже пятиэтажного кирпичного дома. Дом спроектирован по эксклюзивному проекту для научных сотрудников института физиологии им И.П.Павлова. Дом не имеет аналогов, для строительства был выбран самый лучший район города Колтуши ,Павлово. Квартира с приятной планировкой , две спальни 15 кВ м и 20 кВ м , большая кухня , хороший коридор , два балкона , один  из которых остеклен , раздельный санузел . В доме очень толстые стены , около 45 см .   В пешей доступности музей И.П.Павлова , парк Колтуши , конные спортивные клубы , лыжная трасса . Так же в пешей доступности городской транспорт , детские сады , школы , спортивные секции , амбулатория ,магазины , кафе , ресторан . Прямая продажа , один собственник. Звоните , покажем в удобное для Вас время .
Цена
8 500 000 ₽

2-х комнатная квартира

Брюсовская ул. м.Академическая


41.2 м2
Общая
26.2 м2
Жилая
6.8 м2
Кухня
Санкт-Петербург Аукцион Калининский район,рядом поликлиника,сады,школы,магазины,хорошее состояние.Торги   06,03,2026
Цена
5 400 000 ₽

2-х комнатная квартира

Гранитная ул. м.Ладожская


46 м2
Общая
30.7 м2
Жилая
6.5 м2
Кухня
г. Санкт-Петербург, ул. Гранитная, д. 56 Предлагается двухкомнатная кваpтиpа, площадью 46 кв.метров на 5-м этаже. Дом находится в зелёном квартале на берегу реки Оккервиль. В пешей доступности находится гипермаркет Окей (около 3/5 минут ходьбы), а также множество торговых и бизнес центров возле метро Ладожская. В близлежащих дворах есть два детсада и школа. Локация дома является одной из самых доступных для перемещения во все районы города. Все ключевые транспортные артерии находятся в 10/20 минутах на авто. До метpo Нoвoчеpкaсскaя  - пешком 15 мин, м. Ладoжская -10 мин, а тaкжe дo моcтa Алекcaндра Невского, что ведёт на Невский проспект -20 минут и 7 минут на авто. Квартира продается с торгов, аукцион! Ипотека не подходит.
Цена
6 600 000 ₽

2-х комнатная квартира

Всеволожск г., Плоткина ул. м.Улица Дыбенко


51.4 м2
Общая
30.4 м2
Жилая
9.8 м2
Кухня
Г.Всеволожск Ул. Плоткина 19. В центре Всеволожска двухкомнатная квартира . Комнаты изолированные . Частично произведен ремонт . Окна выходя на пешеходную зону. Рядом вся инфраструктура . Один взрослый собственник . Прямая продажа . Квартира без обременений .
Цена
6 000 000 ₽

Закажите консультацию специалиста

Оставьте заявку
Нажимая на кнопку «Отправить заявку», Вы даете согласие на обработку своих персональных данных.
×
продажа
Что вы хотите продать?
Сколько комнат?
Тип объекта?
В каком регионе?
В каком районе Санкт-Петербурга
В каком районе Ленинградской области?

Оставьте Ваш контакт и наши специалисты свяжутся с Вами в самые кротчайшие сроки.

+7
×
новостройка
Какие районы Санкт-Петербурга Вас интересуют?
С какой целью Вы планируете приобрести квартиру?
Сколько комнат должно быть в Вашей будущей квартире?
Какой вариант отделки Вам необходим?
Когда Вы хотите заехать?
В какой бюджет хотите уложиться?

Оставьте Ваш контакт и получите подборку квартир без риска столкнуться с мошенничеством и недостроем.

+7
×
сдать
Что вы хотите сдать?
Скольки комнатная квартира?
Какой тип коммерческой недвижимости вы хотите сдать?
В каком регионе?
В каком районе Санкт-Петербурга
В каком районе Ленинградской области?

Оставьте Ваш контакт и наши специалисты свяжутся с Вами в самые кротчайшие сроки.

+7

Продажа квартир и комнат на вторично рынке жилья.

Чтобы купить квартиру в СПб или найти подходящий вариант продажи квартиры в Петербурге на вторичном рынке жилья, требуется потратить много времени и усилий. Квартира или комната в центре Петербурга может быть существенно дороже, чем идентичная по площади в спальном районе. В первую очередь при покупке квартиры в Петербурге надо определиться с ценовой категорией, чтобы затем сосредоточиться на качестве предлагаемого жилья. Чем выше класс недвижимости, тем больше её стоимость. На сайте компании «Русский Фонд Недвижимости» вы найдете все виды вторичного жилья, от дешевых комнат и доступных квартир до элитных квартир в центре города.


Преимущества покупки квартиры на вторичном рынке:

Покупка квартиры или комнаты на вторичном рынке является самым распространенным видом сделок с недвижимостью. Очевидным преимуществом покупки квартиры на вторичном рынке по сравнению с первичным, является то, что эта недвижимость уже существует. Жилье можно посмотреть, оценить плюсы и минусы. Также, преимуществом этого сегмента является большое  разнообразие предложений: широкий выбор по типам домов, годам постройки, расположению. На вторичном рынке можно выбрать квартиру на любой вкус или соответственно финансовой возможности.


Преимущества сотрудничества с «Русским Фондом Недвижимости».

Позвоните нам и убедитесь, что купить квартиру в Петербурге можно  легко, доступно и комфортно! «Русский Фонд Недвижимости» имеет более двух десятков представительств в Санкт-Петербурге и Ленинградской области. Специалисты нашей компании обладают высокой квалификацией, подтверждённой соответствующими сертификатами, и уникальным опытом работы на рынке недвижимости.

  У нас работают только профессионалы,
  Есть  доступ к профессиональным базам данных по недвижимости
Мы проверяем всю документацию, связанную со сделкой купли-продажи

Мы оказываем следующие услуги при операциях с недвижимостью:

  Подбор вариантов и покупка квартиры или комнаты.
  Прямая продажа квартиры  или продажа с встречной покупкой
  Продажа и покупка квартир класса «бизнес», «элита» и «премиум»
  Полное сопровождение сделки:
  Экспертная оценка рыночной стоимости квартиры
  Проверка «чистоты» истории квартиры
  Помощь в оформлении документов
  Консультации по ипотеке и содействие в получение кредита
  Помощь в приватизации
  Расселение коммунальных квартир


Как правильно выбрать квартиру на вторичном рынке.

Рынок вторичной недвижимости часто таит в себе опасности. Купив квартиру, до сих пор можно столкнуться с ситуацией, что на приобретенной жилплощади окажутся приписанными несовершеннолетние дети или недееспособные граждане. Чтобы не оказаться жертвой мошенников, и избежать других проблем и неоправданных затрат времени, следует воспользоваться услугами профессионального риэлторского агентства, такого как, например, «Русский Фонд Недвижимости». Специалисты компании помогут подобрать подходящий вариант и будут сопровождать сделку на всех этапах.

Этот сайт использует файлы cookie для улучшения пользовательского опыта. Cookie - это небольшие текстовые файлы, которые сохраняются на вашем устройстве и помогают нам запоминать ваши предпочтения, анализировать посещаемость сайта и предоставлять более персонализированный контент. Использование файлов cookie позволяет нам сделать сайт удобнее для вас. Политика конфиденциальности
Принять Отказаться