Продажа квартир и комнат

Комнаты
Например: Массальского, 4
Ванные
3-х комнатная квартира

Всеволожск г., Обороны ул. м.Улица Дыбенко


72.7 м2
Общая
42 м2
Жилая
8.1 м2
Кухня
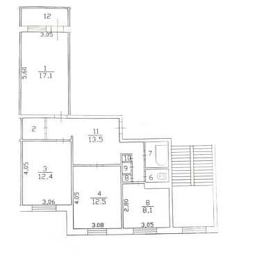
Город Всеволожск, улица Обороны, дом 3, корп. 1. Продается просторная и светлая трехкомнатная квартира площадью 72.7 кв. метров на пятом этаже пятиэтажного дома Гатчинской серии. Три отдельные комнаты 17,1, 12,5 и 12,4 кв метров, из большой комнаты выход на застекленную широкую лоджию. Огромная прихожая 13,5кв. метров позволяет разместить как большой шкаф для хранения, так и зону отдыха или библиотеку. Так же есть вместительная гардеробная 2 кв. метра. В отдельном коридоре, ведущем на квадратную кухню  8,1 кв метров, очень светлую, с большим окном, расположены раздельные туалет и ванная комната. В последней легко становится стиральная машина, а так же установлен водогрей на случай летнего профилактического отключения горячей воды. так же в коридоре есть встроенный шкаф для хранения и антресоли. Кухня и две комнаты выходят окнами во двор, в 100 метрах находится школа №3. Комната с лоджией выходят на зеленые насаждения и частный сектор. Проблемы со смотрящими в окна соседями нет. Чистая парадная и домофон. Район тихий и очень зеленый, рядом парк  Софиевка. В пешей доступности вся нужная инфраструктура: школа, детский сад №10, аптеки, магазины, в 7 минутах станция Бернгардовка, откуда 30 мин до Финляндского вокзала. Два собственника, несложная встречная покупка. Квартира подойдет большой семье, а так же тем, кто работает в городе Санкт-Петербург и хочет добираться без пробок. Низкая цена для большой, просторной квартиры. Звоните, просмотр по договоренности. Рассмотрим любые предложения.
Цена
7 790 000 ₽

3-х комнатная квартира

Курская ул. м.Обводный канал


67.9 м2
Общая
51.1 м2
Жилая
7.1 м2
Кухня
Отличное предложение в центре города! Продается просторная 3х комнатная квартира с качественным ремонтом в отличном состоянии в кирпичном теплом доме! Квартира чистая, уютная, светлая, смежно - изолированные комнаты. Квартира трехсторонняя с балконом. Вместительная гардеробная.  В квартире качественный ремонт. Электрика и сантехника новые. На окнах стеклопакеты.  Санузел в кафельной плитке. Чистая парадная. Видео наблюдение при входе и в парадной. Дом расположен вдоль тихой улицы. Зеленый тихий двор с детской площадкой. Доброжелательные соседи. Во дворе есть парковочные места. Рядом всё необходимое: школы и детские сады, много магазинов, кафе, аптеки, торговый комплекс (фитнес с бассейном), в пешей доступности автовокзал и пр. Для прогулок в пешей доступности Воронежский сад, Багратионовский сквер и др. Хорошая транспортная доступность. До станции метро Обводный канал 5 минут пешком, до метро Лиговский проспект – 1 остановка на общественном транспорте. Много общественного транспорта в разные районы города. Прямая продажа.1 взрослый собственник. Полная цена в ДКП. Быстрый выход на сделку.
Цена
18 000 000 ₽

3-х комнатная квартира

Яхтенная ул. м.Беговая


89.4 м2
Общая
50.2 м2
Жилая
14.5 м2
Кухня
192 Продается просторная трехкомнатная квартира в одном из лучших мест Приморского района улица Яхтенная, 22к2. Идеальный вариант для тех, кто ценит пространство, тишину и красивые закаты. Площадь: 89,4 кв. м. — максимум полезного пространства. Планировка: Все комнаты изолированные, правильной формы. Кухня-мечта: Большая светлая кухня с прямым выходом на застекленную лоджию. Вид: Из окон открывается потрясающий вид на символ современного Петербурга. Особенно красиво в вечернее время. Этаж: 17/17 — никаких соседей сверху! Над квартирой технический этаж, что гарантирует тишину и отсутствие протечек. О ДОМЕ: Год постройки: 2009. Серия: Современная панель улучшенная 137 серия. Ухоженная придомовая территория, чистая парадная с видеонаблюдением, 2 лифта (пассажирский и грузовой). Отличная ИНФРАСТРУКТУРА И ЛОКАЦИЯ: Метро: в пешей доступности до ст. м. «Беговая». Природа: Через дорогу — Юнтоловский заказник, в 15 минутах — Парк 300-летия и Финский залив. Семьям: Во дворе детский сад №68, школа №630 ( бассейн,секции)  в 2 минутах ходьбы. Рядом ТРК «Меркурий», «Атлантик Сити», гипермаркеты. Транспорт: Быстрый выезд на ЗСД и Приморское шоссе. ЮРИДИЧЕСКАЯ ИНФОРМАЦИЯ: Два взрослых собственника. Без обременений и долгов. Встречная покупка активно смотрим. Полная стоимость в договоре. Звоните и записывайтесь на просмотр! Эта квартира ждет именно вас.
Цена
18 600 000 ₽

Затрудняетесь с выбором?

Не тратьте время на поиск и анализ множества предложений недвижимости
Мы сделаем это за вас профессионально, быстро, предложив оптимальные варианты по выгодной цене!

3-х комнатная квартира

Кировск г., Молодежная ул. м.Рыбацкое


70.6 м2
Общая
45 м2
Жилая
14 м2
Кухня
Ленинградская область, Кировский район, г. Кировск, ул Молодёжная продаётся 3-х ком квартира, 70, 6 кв.м.  общей площади, на 5 этаже 5-и этажного дома, 1994 года постройки, жилая 14+14+17,1 кв.м., кухня 14 кв.м., санузел раздельный, застеклённая лоджия, пластиковые окна, подвесные потолки, качественный паркет, хорошая входная дверь. Один взрослый собственник, прямая продажа, документы готовы к сделке. От СПб можно добраться за 25 минут от м. ул. Дыбенко на автомобиле, хорошее автобусное сообщение. Рядом магазины, школа, дет сады, аптека, зелёный парк, река Нева. Звоните, организуем просмотр.
Цена
7 400 000 ₽

3-х комнатная квартира

Кировск г., Краснофлотская ул. м.Улица Дыбенко


63.9 м2
Общая
41.58 м2
Жилая
6.43 м2
Кухня
Продается уютная трёхкомнатная квартира в малоэтажном кирпичном доме (2 этажа, один подъезд)! Квартира просторная, с удобной и логичной планировкой. Все комнаты раздельные, имеют правильные формы. Вместительная прихожая и широкий коридор. Санузел раздельный. Есть балкон и лоджия. Эта квартира идеально подходит для комфортной жизни семьи! Будем рады показать вам квартиру - звоните, чтобы договориться о просмотре.
Цена
6 300 000 ₽

3-х комнатная квартира

Шушары пос., Московское шос. м.Купчино


94.8 м2
Общая
49.7 м2
Жилая
17.1 м2
Кухня
Санкт-Петербург, п. Шушары, Ленсоветовский, Московское шоссе, дом 246. Предлагаем просторную квартиру с очень удобной и продуманной планировкой в п.Ленсоветовский (Пушкинский р-н). Все три комнаты - изолированные, что гарантирует личное пространство и уединение для каждого члена семьи. Отсутствие ремонта предоставляет Вам свободу для реализации любых дизайнерских идей и создания идеального домашнего очага без особых финансовых затрат. Район с развитой инфраструктурой: в шаговой доступности - 3 детских сада, благоустроенные детские площадки, большая школа с бассейном, поликлиника, МФЦ, библиотека, магазины и аптеки. Отличная транспортная доступность: удобный выезд на КАД и ЗСД. Всего 15 минут на общественном транспорте до станций метро Шушары, Звездная, Купчино. Здесь Вы сможете наслаждаться спокойствием ближайшего пригорода и при этом быть в центре городской жизни. В непосредственной близости - живописные парки Пушкина и Павловска, идеальные для того, чтобы интересно и с пользой для здоровья проводить свободное время. Это уникальная возможность наслаждаться спокойствием и зеленью пригорода, не жертвуя преимуществами городской инфраструктуры. Быстрый выход на сделку: без обременений, один взрослый собственник, прямая продажа (покупка в перспективе). Рассмотрим любую форму приобретения (субсидии, сертификаты и т.д.) и варианты обмена на вашу недвижимость. Возможен торг.
Цена
11 780 000 ₽

3-х комнатная квартира

Всеволожск г., Колтушское шос. м.Ладожская


74.41 м2
Общая
42.7 м2
Жилая
8.5 м2
Кухня
Ленинградская область,Всеволожский район, город Всеволожск, Колтушское шоссе .Продается трехкомнатная квартира в отличном состоянии. Комнаты изолированные, большая лоджия. Сделан качественный ремонт, тёплый пол на кухне,в туалете,ванной.Остаётся кухонный гарнитур,  встроенный шкаф-купе в прихожей. В доме проведен капитальный ремонт с заменой общедомовых труб, электрики, дом дополнительно  утеплен базальтовой ватой и облицован керамическими панелями, новый лифт, сделан ремонт в подъезде. В пешей доступности от дома больничный комплекс и поликлиника, несколько школ и детских садов, отделения Сбербанка и множество сетевых магазинов, автобусная остановка ( в т.ч. автобусы до метро Ладожская), через дорогу парк Песчанка, ледовый дворец .Электричка до Финляндского вокзала.
Цена
10 700 000 ₽

3-х комнатная квартира

Лопухинка дер., Первомайская ул. м.Беговая


58.4 м2
Общая
43.4 м2
Жилая
5.5 м2
Кухня
Л.О., Ломоносовский р-н, дер. Лопухинка. К продаже предлагается 3-х ком. кв. в Ленинградской области, в д. Лопухинка Ломоносовского района.Дом очень прочный и тёплый, 1969 г постройки. Перекрытия железобетонные. Водоотведение, газоснабжение, горячая - холодная вода, теплоснабжение центральные.  Квартира находится на комфортном 2 этаже пятиэтажного дома.  Общая площадь квартиры составляет 58,4 м кв.  Жилая - 43,4 м кв.  Комнаты 19,3 - проходная, комнаты 13,3 и 10,8 - изолированные, кухня 5,5 м2. В квартире установлены стеклопакеты, в том числе на балконе. Рядом с домом благоустроенная детская площадка.  Парковка во дворе. Деревня Лопухинка, это посёлок городского типа. Здесь есть все, что необходимо для современной жизни: магазины «Монетка»,`Пятерочка`, «Магнит», «Магнит-Косметика»; «Светофор»; Пункт выдачи заказов «Ozon» и «Wildberries»; Детский сад «Родничок»; Общеобразовательная школа и Музыкальная школы; Поликлиника; Отделение полиции; Общественная баня; Вокруг грибные леса и исторические Усадьбы.  Из достопримечательностей деревни Лопухинка: Усадьба Христиана Геринга и Усадебный парк, который сейчас облагородили, проложили деревянные настилы, сделали указатели, а так же голубые радоновые озера с родниками. 10 минут пешком до реки Лопухинка с радоновыми источниками и озерами. До парка с живописной эко-тропой  700 метров. Хорошая транспортная доступность. Добраться можно из Петергофа автобусом № 463; Из г. Ломоносова - автобусы № 685 А – № 686 . Один взрослый собственник. Никто не прописан. ПОЛНАЯ сумма в договоре. Обременений нет. Документы готовы. Быстрый выход на сделку.
Цена
4 200 000 ₽

Комната в 3-комн. квартире

Комсомола ул. м.Площадь Ленина


100 м2
Общая
23 м2
Жилая
12 м2
Кухня
Продается комната площадью 23 кв. м. в 3-х комнатной квартире в центре Санкт-Петербурга, в 7 минутах от метро площадь Ленина. окна выходят во двор.  У собственников оформлен отказ от преимущественного права приобретения. Третья комната принадлежит Санкт-Петербургу  и сдается по договору социального найма. В парадной сделан ремонт, очень чисто. В квартире еще одна комната которая используется собственниками как место общего пользования, для хранения вещей, стиральные машины и прочее.
Цена
4 950 000 ₽

3-х комнатная квартира

Стрельна г., Кропоткинская ул. м.Автово


66.2 м2
Общая
40.4 м2
Жилая
9.5 м2
Кухня
Санкт-Петербург, п. Стрельна, ул. Кропоткинская, д. 6.    Продается просторная 3 к.квартира с изолированными комнатами на комфортном 3-м этаже. Дом теплый кирпичный расположен в тихом зеленом районе. Рядом вся инфраструктура -  сетевые магазины, два детских садика, новая школа с бассейном, ФОК Газпром, бассейн, ледовая арена, ресторан Токио-Сити, аптека, поликлиника. Удобная транспортная доступность - 5 мин. пешком до автобусной остановки (автобусы ходят в любом направлении) и 10 мин. пешком до станции Стрельна, где ходят очень комфортные электрички `Ласточка` и `Финист`, что позволяет быстро и бюджетно добраться до Санкт-Петербурга.    Квартира светлая и чистая, установлены стеклопакеты, имеется вместительная кладовка, балкон. Чистый подъезд, мусоропровод заварен, хорошие соседи. Во дворе установлена современная зона отдыха.    В шаговой доступности расположен Орловский парк с красивым прудом, рядом мини-зоопарк и конный клуб. Вдоль Финского залива расположен парк Стрельнинская бухта с прекрасным пляжем.    Просмотры по договоренности. Один взрослый собственник. Срок владения долее 20-ти лет. Документы к продаже готовы,  у квартиры `чистая` история -  ни одной продажи.    Встречная покупка - 1 к. квартира в Петродворцовом районе.
Цена
13 500 000 ₽

3-х комнатная квартира

Среднеохтинский просп. м.Новочеркасская


81.6 м2
Общая
55.6 м2
Жилая
9.3 м2
Кухня
Санкт_Петербург Аукцион, 3 ком.квартира в жилом состоянии.цена ниже рыночной.Все вопросы по телефону.ЕДРГН есть. Торги 01,04.2026
Цена
12 600 000 ₽

3-х комнатная квартира

Сертолово г., Кленовая ул. м.Парнас


84 м2
Общая
51.9 м2
Жилая
12.6 м2
Кухня
Продается стильная, просторная, уютная трехкомнатная квартира. Все комнаты изолированные, квартира двухсторонняя, расположена на 2 этаже, что позволит обходиться без лифта. • Приобретая квартиру вы получаете в подарок кухонный гарнитур со встроенной техникой. - Просторная кухня 12.6 кв.м. позволит наслаждаться трапезой всей семье. Да и готовить на ней - одно удовольствие. - Изолированные комнаты обеспечат всем членам семьи личное пространство. - Просторный холл с кладовой легко и удобно передвигаться и убрать лишние вещи. Дом находится в дали от основных дорог, что избавит вас от шума и пыли. Рядом с домом всегда есть место для парковки автомобиля. Сертолово, это район с развитой инфраструктурой: несколько школ, детские сады, новая, современная поликлиника, магазины, кафе и т.д.. Собственность более пяти лет. Прямая продажа. к сделке готовы. Видео по запросу.
Цена
12 640 000 ₽

Закажите консультацию специалиста

Оставьте заявку
Нажимая на кнопку «Отправить заявку», Вы даете согласие на обработку своих персональных данных.
×
продажа
Что вы хотите продать?
Сколько комнат?
Тип объекта?
В каком регионе?
В каком районе Санкт-Петербурга
В каком районе Ленинградской области?

Оставьте Ваш контакт и наши специалисты свяжутся с Вами в самые кротчайшие сроки.

+7
×
новостройка
Какие районы Санкт-Петербурга Вас интересуют?
С какой целью Вы планируете приобрести квартиру?
Сколько комнат должно быть в Вашей будущей квартире?
Какой вариант отделки Вам необходим?
Когда Вы хотите заехать?
В какой бюджет хотите уложиться?

Оставьте Ваш контакт и получите подборку квартир без риска столкнуться с мошенничеством и недостроем.

+7
×
сдать
Что вы хотите сдать?
Скольки комнатная квартира?
Какой тип коммерческой недвижимости вы хотите сдать?
В каком регионе?
В каком районе Санкт-Петербурга
В каком районе Ленинградской области?

Оставьте Ваш контакт и наши специалисты свяжутся с Вами в самые кротчайшие сроки.

+7

Продажа квартир и комнат на вторично рынке жилья.

Чтобы купить квартиру в СПб или найти подходящий вариант продажи квартиры в Петербурге на вторичном рынке жилья, требуется потратить много времени и усилий. Квартира или комната в центре Петербурга может быть существенно дороже, чем идентичная по площади в спальном районе. В первую очередь при покупке квартиры в Петербурге надо определиться с ценовой категорией, чтобы затем сосредоточиться на качестве предлагаемого жилья. Чем выше класс недвижимости, тем больше её стоимость. На сайте компании «Русский Фонд Недвижимости» вы найдете все виды вторичного жилья, от дешевых комнат и доступных квартир до элитных квартир в центре города.


Преимущества покупки квартиры на вторичном рынке:

Покупка квартиры или комнаты на вторичном рынке является самым распространенным видом сделок с недвижимостью. Очевидным преимуществом покупки квартиры на вторичном рынке по сравнению с первичным, является то, что эта недвижимость уже существует. Жилье можно посмотреть, оценить плюсы и минусы. Также, преимуществом этого сегмента является большое  разнообразие предложений: широкий выбор по типам домов, годам постройки, расположению. На вторичном рынке можно выбрать квартиру на любой вкус или соответственно финансовой возможности.


Преимущества сотрудничества с «Русским Фондом Недвижимости».

Позвоните нам и убедитесь, что купить квартиру в Петербурге можно  легко, доступно и комфортно! «Русский Фонд Недвижимости» имеет более двух десятков представительств в Санкт-Петербурге и Ленинградской области. Специалисты нашей компании обладают высокой квалификацией, подтверждённой соответствующими сертификатами, и уникальным опытом работы на рынке недвижимости.

  У нас работают только профессионалы,
  Есть  доступ к профессиональным базам данных по недвижимости
Мы проверяем всю документацию, связанную со сделкой купли-продажи

Мы оказываем следующие услуги при операциях с недвижимостью:

  Подбор вариантов и покупка квартиры или комнаты.
  Прямая продажа квартиры  или продажа с встречной покупкой
  Продажа и покупка квартир класса «бизнес», «элита» и «премиум»
  Полное сопровождение сделки:
  Экспертная оценка рыночной стоимости квартиры
  Проверка «чистоты» истории квартиры
  Помощь в оформлении документов
  Консультации по ипотеке и содействие в получение кредита
  Помощь в приватизации
  Расселение коммунальных квартир


Как правильно выбрать квартиру на вторичном рынке.

Рынок вторичной недвижимости часто таит в себе опасности. Купив квартиру, до сих пор можно столкнуться с ситуацией, что на приобретенной жилплощади окажутся приписанными несовершеннолетние дети или недееспособные граждане. Чтобы не оказаться жертвой мошенников, и избежать других проблем и неоправданных затрат времени, следует воспользоваться услугами профессионального риэлторского агентства, такого как, например, «Русский Фонд Недвижимости». Специалисты компании помогут подобрать подходящий вариант и будут сопровождать сделку на всех этапах.

Этот сайт использует файлы cookie для улучшения пользовательского опыта. Cookie - это небольшие текстовые файлы, которые сохраняются на вашем устройстве и помогают нам запоминать ваши предпочтения, анализировать посещаемость сайта и предоставлять более персонализированный контент. Использование файлов cookie позволяет нам сделать сайт удобнее для вас. Политика конфиденциальности
Принять Отказаться