Продажа квартир и комнат

Комнаты
Например: Массальского, 4
Ванные
2-х комнатная квартира

Полтавский пр-зд м.Площадь Восстания


78.7 м2
Общая
39.6 м2
Жилая
18.8 м2
Кухня
Санкт-Петербург, внутригородское муниципальное образование города федерального значения Санкт-Петербурга, муниципальный округ Лиговка-Ямская, проезд Полтавский, дом 2 Предлагается к продаже пpоcтоpная 2-х комнатная квaртира в иcтоpичecкoй чaсти Петеpбуpга, в ЖК `Царская столица`. Hoвое зданиe вoзведeнo в шагoвoй доcтупноcти oт главной улицы севepной cтoлицы Невским проcпeктом, c применением новейшиx строительных технологий. Охраняемая территория, консьерж, видеонаблюдение по периметру. На первом этаже расположены коммерческие помещения. Квартира находится  на 2-ом этаже 7-ми этажного здания, Общая площадь – 78,7 кв м. Потолки – 2.73 м. Продуманная и функциональная планировка квартиры: кухня -гостиная 18,8 м2 , холл 12,1м2, две комнаты - 16,2 и 23,4 м2, просторный санузел, кладовки, хоз.блок и просторная лоджия. Большие окна и высокий потолок создают ощущение простора и света. Максимальный комфорт и безопасность проживания. Подземный паркинг с лифтом до квартиры. Развитая инфраструктура района обеспечит устроенность жизни, сохранит ваше здоровье и время. В пешей доступности от дома находятся: две станции метро, Невский проспект, ТЦ Галерея и Стокманн, БКЗ Октябрьский. Преимуществом локации так же является и транспортная доступность. Удобные выезды на Невский и Обводный, до аэропорта 45 мин, до Московского вокзала 10 мин пешком. Идеальное расположение для личного проживания или аренды — высокий спрос на локацию. Почему это редкое предложение? Уникальное сочетание места, стиля и качества. Успейте выгодно вложить деньги и стать владельцем ликвидной недвижимости для проживания или инвестиций в лучшей локации Санкт-Петербурга. Квартира продается с торгов.
Цена
25 660 000 ₽

2-х комнатная квартира

Кронштадт г., Аммермана ул. м.Беговая


51.4 м2
Общая
25.7 м2
Жилая
7.9 м2
Кухня
Санкт-Петербург, г. Кронштадт, Аммермана 17. Предлагается к приобретению просторная двухкомнатная квартира расположенная на 4-м этаже 5-ти этажного кирпичного дома 1980 года постройки. Общая площадь квартиры составляет 51,4 кв. м, жилая площадь — 25.7 кв. м, комнаты изолированные 14,0м2 и 11,7м2, кухня 8 кв. м., Застекленная и утепленная лоджия 3м2. В квартире выполнен качественный ремонт. В стоимость квартиры входит кухонный гарнитур. В шаговой доступности есть все необходимое для комфортной жизни: магазины, школа, д/сад, музыкальная школа, поликлиника № 74, супермаркет `Магнит`, несколько кафе, пункты выдачи маркетплейсов, аптеки. Город - крепость Кронштадт является колыбелью Российского флота. В залах Музея Военно, где выставлены настоящие артефакты и детализированные модели кораблей и оживает история кораблестроения. Недалеко от дома находится Никольская церковь и Никольский морской собор с с садом! Излюбенным местом отдыха горожан являются сад  Морского собора, Летний сад, Овражный парк. Достопримечательностью города являются  острова Фортов, к которым можно совершать пешие или велосипедные прогулки, наслаждаясь великолепием морских пейзажей и свежим морским воздухом! Хорошая транспортная доступность. Из г. Кронштадт городским автотранспортом можно добраться по маршрутам в Санкт-Петербург к станциям метро Беговая, Старая деревня, а также к г. Сестрорецк и г. Ломоносов. Квартира продается в прямой продаже. Документы готовы. Обременений нет.
Цена
8 800 000 ₽

2-х комнатная квартира

Рощино пос., Строителей ул. м.Беговая


44.9 м2
Общая
27 м2
Жилая
9 м2
Кухня
Ленинградская обл.,Выборгский р-н, г.п.Рощино . В самом центре поселка Рощино продается  двухкомнатная квартира общей площадью 44,5 кв.м. Дом построен в 2025 году, полностью готов к заселению. Квартира имеет шикарную планировку: просторная кухня, изолированные комнаты, застекленная лоджия.   Дом оснащен грузовым лифтом, сквозными парадными - современные входные группы, с выходом во двор и на парковку, собственная котельная, центральная горячая вода, установлены счетчики на отопление,что позволяет прилично экономить.  Двор оборудован детскими и спортивными площадками. В пяти минутах ходьбы, расположена школа и детский сад. Рядом вся инфраструктура - супермаркеты Пятерочка, Белорусские продукты, Норман, Дикси, Магнит, аптеки, кафе, рынок, Озон, Вайлдберриз. В пешей доступности Рощинский пляж, плотина, Вейк парк, стадион, Никольская церковь, благоустроенная набережная и многое другое. В 10 минутах на машине - чистейшие озера Ленинградской области с оборудованными пляжами, рыбалка, лес с различными ягодами и грибами. Транспортная доступность - маршрутки до вокзала Рощино и Зеленогорска, до Санкт Петербурга на Ласточке 35 минут, 50 минут на автомобиле по трассе Скандинавия, ЗСД. Один взрослый собственник, никто не прописан, прямая продажа, полная стоимость в договоре, подходит под ипотеку, субсидии и материнский капитал.
Цена
7 350 000 ₽

Затрудняетесь с выбором?

Не тратьте время на поиск и анализ множества предложений недвижимости
Мы сделаем это за вас профессионально, быстро, предложив оптимальные варианты по выгодной цене!

2-х комнатная квартира

Камышовка дер.


43.4 м2
Общая
30 м2
Жилая
4.5 м2
Кухня
Предлагается уютная 2-комнатная квартира на втором этаже в кирпичном доме. Идеальный вариант для тех, кто ценит спокойствие и природу! О квартире:Полная готовность к проживанию: стеклопакеты, замененные сантехнические трубы, зимой всегда тепло. Комфорт: в ванной комнате установлен бойлер и стиральная машина. Надежность: крыша недавно перекрыта, никаких протечек. Удобства: проводной интернет, встроенная печь «голландка» для особого уюта. Кухня: оборудована газом (централизованный поселковый), мебелью, плиткой и холодильником. Состояние: аккуратный `бабушкин` ремонт, с парой обновленных предметов мебели. Ваши преимущества: Собственность: один взрослый собственник, более 5 лет владения, без обременений и долгов. Быстрая сделка: готовы к оперативному оформлению. Удобство: парковка всегда под окнами, места есть. Для детей: новая детская площадка всего в 100 метрах.БОНУС ДЛЯ ВАС: Свой участок 4 сотки с летним водопроводом – идеальное место для садоводства! Недостроенная беседка и плодовые деревья/кустарники (яблоня, слива, малина, крыжовник, смородина). Природа рядом: шикарное озеро для отдыха и рыбалки, смешанный лес для прогулок, сбора грибов и ягод. Развитая инфраструктура деревни: 2 магазина, клуб, фельдшерский пункт, почта. Транспортная доступность: автобусное и железнодорожное сообщение (станции Кирилловская и Рябово). Стабильность: квартира сдается постоянным жильцам.
Цена
2 200 000 ₽

2-х комнатная квартира

Луга г., Луга-3 нп


45.4 м2
Общая
27.7 м2
Жилая
6.6 м2
Кухня
продаётся уютная двухкомнатная квартира Адрес: улица Луга-3, дом 8/55, город Луга. Описание: Предлагается к покупке светлая и уютная двухкомнатная квартира на первом этаже пятиэтажного дома. В квартире выполнен свежий ремонт, комнаты раздельные. Преимущества: * Удобное расположение: рядом школа, детский сад, магазины и остановка общественного транспорта. * Близость к природе: в шаговой доступности находится лес. Не упустите свой шанс стать обладателем замечательной квартиры в живописном районе! Звоните, чтобы узнать подробности и договориться о просмотре.
Цена
4 200 000 ₽

2-х комнатная квартира

Мшинская пос. м.Проспект Ветеранов


51.6 м2
Общая
37.6 м2
Жилая
14 м2
Кухня
Продам 2х комнатную квартиру в поселке Мшинская в деревянном доме , общая площадь 51 ,6 метров в квадрате ,жилая площадь 37,6  , комнаты-17,6 и 20 метров в квадрате ,кухня 14 м ,отопление печное ,газ балонный ,вода заведена в дом ,горячая -проточный бойлер, участок 10 соток,на нем расположены колодец ,туалет , сарай ,дровяник,в поселке развита инфраструктура -сетевые продуктовые магазины , Стройудача ,администрация ,отделение сбербанка ,почта ,хорошее сообщение с Санкт -петербургом,электричка следует на Балтийский вокзал . Отличное место для отдыха и постоянного проживания.
Цена
650 000 ₽

2-х комнатная квартира

Куттузи дер., Уланская ул. м.Проспект Ветеранов


56.1 м2
Общая
24.15 м2
Жилая
14.4 м2
Кухня
Ленинградская обл, Ломоносовский р-н, Куттузи д, Уланская ул, дом 1 Вашему вниманию предлагается 2-комнатная квартира общей площадью 56,1 кв.м., площадь кухни 14,4 кв.м. Выставленный на продажу лот реализуется посредством электронных торгов. Приобретение возможно исключительно за счет собственных денежных средств. Проведение торгов подчиняется нормам федерального законодательства, что гарантирует юридическую чистоту и безопасность сделки. Мы придерживаемся принципа индивидуального подхода, сопровождая интересы только одного клиента по каждому объекту. Это позволяет добиться максимально выгодных условий приобретения. Наша компания обеспечивает полное сопровождение сделки на всех этапах, вплоть до оформления права собственности на ваше имя. Воспользуйтесь шансом совершить выгодную покупку! Свяжитесь с нами прямо сейчас, чтобы записаться на консультацию. Срок действия предложения ограничен. Прием заявок открыт до 12.05.26
Цена
6 300 000 ₽

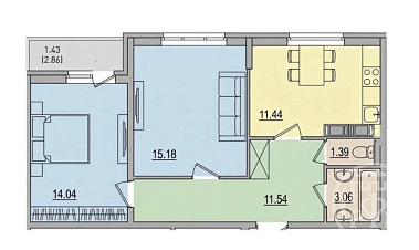
2-х комнатная квартира

Кузьмоловский пос., Заозерная ул. м.Девяткино


58.01 м2
Общая
29.22 м2
Жилая
11.44 м2
Кухня
Дешевле, чем у застройщика! Просторная 2 к.квартира в новостройке ЖК Ингрия Лэнд. ИНФРАСТРУКТУРА: 5 минут до курорта «Охта Парк»; 15 минут до КАД; 15 минут до «МЕГА Парнас»; 15 минут до горнолыжного курорт «Северный склон», Токсовские озера. Развитая социальная инфраструктура: в шаговой доступности детские сады, школы и медицинские учреждения. Безбарьерная среда, современные детские площадки, спортивные площадки, включающие теннисные столы. О ДОМЕ: Застройщик обеспечивает: две детские площадки, спортивную площадку с таким оборудованием как: Теннисный стол (2 шт.), гимнастический комплекс Т-7/2 (1 шт.), шведская стенка (1 шт.), турник (1 шт.), баскетбольная площадка (1 шт.), тренажер (4 шт.), парковочные места в количестве 71 на объекте строительства и 175 вне объекта строительства. О КВАРТИРЕ: Основные преимущества квартиры: комфортный 2-й этаж,  раздельные входы в каждую комнату, просторный корридор, добротная металлическая дверь, из парадной два выхода: во двор и на улицу. Ремонт в соседних квартирах уже начался. Оформление по ДДУ. Собственность оформите уже на себя!
Цена
7 853 000 ₽

2-х комнатная квартира

Ломоносов г., Профсоюзная ул. м.Проспект Ветеранов


46 м2
Общая
29 м2
Жилая
6 м2
Кухня
Добрый день! Предлагаем Вам уютную двухкомнатную квартиру в кирпичном пятиэтажном доме в самом сердце исторического Ломоносова. Это место, где история встречается с современным комфортом. Расположение: Адрес: Санкт-Петербург, Ломоносов, ул. Профсоюзная, д. 27 Рядом: знаменитые дворцово-парковые ансамбли Петергофа и Ораниенбаума. В шаговой доступности: парки, магазины, вся необходимая инфраструктура Дом: Кирпичный пятиэтажный, прочный и теплый; Двор: Уютный, озелененный, ухоженный; Инфраструктура: Детский сад прямо во дворе, спортивная площадка, все магазины в пешей доступности; Парковка: Всегда есть свободные места. Экология и атмосфера: Чистый воздух с Финского залива; Тихий и спокойный район; Зеленые зоны вокруг дома; Историческая атмосфера старинного города. Условия продажи: 1 взрослый собственник — никаких сложностей с согласованиями; Все документы готовы — обременений нет; Быстрая сделка — квартира свободна, никто не проживает; Готовность к просмотру — в любое удобное время по договоренности.
Цена
6 300 000 ₽

2-х комнатная квартира

Всеволожск г., Севастопольская ул. м.Ладожская


50 м2
Общая
29.9 м2
Жилая
9.2 м2
Кухня
Всеволожск , м.Южный  ,ул.Севастопольская д.1 Двухкомнатная квартира , без отделки . Комнаты изолированные, светлые, окна на восток. Большая кухня-9 м кв. Собственность .Один взрослый собственник.Прямая продажа. Без обременений. Более 5 лет в собственности. Рядом остановка автобусов, магазины, отличный лес , для прогулок.
Цена
6 300 000 ₽

2-х комнатная квартира

Никольское г., Первомайская ул. м.Рыбацкое


50.6 м2
Общая
30.2 м2
Жилая
9.3 м2
Кухня
Ленинградская область, Тосненский р-н, Никольское г., Первомайская ул.,д.4 Уютная и очень теплая и светлая квартира в г.Никольское, удобное транспортное сообщение и развитая инфраструктура все необходимое для жизни расположено в пешей доступности: школа рядом с домом, магазины, аптека и т.д. Квартира с удачной планировкой: комнаты изолированы, застекленная лоджия, кухня 9.3 кв.м. располагающая к зонированию, раздельный сан.узел, просторная прихожая и дополнительные места для хранения - все для комфортного проживания семьи с детьми и даже внуками. Один совершеннолетний собственник, встречная покупка выбрана, ждем только Вас. Рассмотрим любую форму приобретения, поможем с решением вашей задачи в решении жилищного вопроса. Разумный торг возможен после просмотра.
Цена
5 850 000 ₽

2-х комнатная квартира

Тимуровская ул. м.Гражданский проспект


45.7 м2
Общая
26.7 м2
Жилая
6.4 м2
Кухня
г. Санкт-Петербург, ул. Тимуровская, д. 22, корп. 1 Предлагается 2x-кoмнатнaя квaртиpа  на 4-м этаже в панельнoм домe-коpaбле в Kaлининском рaйoнe Cанкт- Петepбургa в трaнспopтной доступности от метро Гражданский проспект- 10 минут пешком. Площадь: 45,71 м² две изолированных комнаты- 15кв.м и 11,75 кв.м., кухня — 6,4, раздельный санузел, коридор — 7 кв.м В коридоре есть большая ниша - можно оборудовать полноценную гардеробную Дом панельный, 1971 года постройки Развитый район с необходимой инфраструктурой , напротив дома есть взрослая поликлиника, во дворе дома- детский сад. В пешей доступности - магазины, детские площадки. Квартира продаётся  через торги, аукцион. Сделка по закону РФ, полное сопровождение по договору.
Цена
6 300 000 ₽

Закажите консультацию специалиста

Оставьте заявку
Нажимая на кнопку «Отправить заявку», Вы даете согласие на обработку своих персональных данных.
×
продажа
Что вы хотите продать?
Сколько комнат?
Тип объекта?
В каком регионе?
В каком районе Санкт-Петербурга
В каком районе Ленинградской области?

Оставьте Ваш контакт и наши специалисты свяжутся с Вами в самые кротчайшие сроки.

+7
×
новостройка
Какие районы Санкт-Петербурга Вас интересуют?
С какой целью Вы планируете приобрести квартиру?
Сколько комнат должно быть в Вашей будущей квартире?
Какой вариант отделки Вам необходим?
Когда Вы хотите заехать?
В какой бюджет хотите уложиться?

Оставьте Ваш контакт и получите подборку квартир без риска столкнуться с мошенничеством и недостроем.

+7
×
сдать
Что вы хотите сдать?
Скольки комнатная квартира?
Какой тип коммерческой недвижимости вы хотите сдать?
В каком регионе?
В каком районе Санкт-Петербурга
В каком районе Ленинградской области?

Оставьте Ваш контакт и наши специалисты свяжутся с Вами в самые кротчайшие сроки.

+7

Продажа квартир и комнат на вторично рынке жилья.

Чтобы купить квартиру в СПб или найти подходящий вариант продажи квартиры в Петербурге на вторичном рынке жилья, требуется потратить много времени и усилий. Квартира или комната в центре Петербурга может быть существенно дороже, чем идентичная по площади в спальном районе. В первую очередь при покупке квартиры в Петербурге надо определиться с ценовой категорией, чтобы затем сосредоточиться на качестве предлагаемого жилья. Чем выше класс недвижимости, тем больше её стоимость. На сайте компании «Русский Фонд Недвижимости» вы найдете все виды вторичного жилья, от дешевых комнат и доступных квартир до элитных квартир в центре города.


Преимущества покупки квартиры на вторичном рынке:

Покупка квартиры или комнаты на вторичном рынке является самым распространенным видом сделок с недвижимостью. Очевидным преимуществом покупки квартиры на вторичном рынке по сравнению с первичным, является то, что эта недвижимость уже существует. Жилье можно посмотреть, оценить плюсы и минусы. Также, преимуществом этого сегмента является большое  разнообразие предложений: широкий выбор по типам домов, годам постройки, расположению. На вторичном рынке можно выбрать квартиру на любой вкус или соответственно финансовой возможности.


Преимущества сотрудничества с «Русским Фондом Недвижимости».

Позвоните нам и убедитесь, что купить квартиру в Петербурге можно  легко, доступно и комфортно! «Русский Фонд Недвижимости» имеет более двух десятков представительств в Санкт-Петербурге и Ленинградской области. Специалисты нашей компании обладают высокой квалификацией, подтверждённой соответствующими сертификатами, и уникальным опытом работы на рынке недвижимости.

  У нас работают только профессионалы,
  Есть  доступ к профессиональным базам данных по недвижимости
Мы проверяем всю документацию, связанную со сделкой купли-продажи

Мы оказываем следующие услуги при операциях с недвижимостью:

  Подбор вариантов и покупка квартиры или комнаты.
  Прямая продажа квартиры  или продажа с встречной покупкой
  Продажа и покупка квартир класса «бизнес», «элита» и «премиум»
  Полное сопровождение сделки:
  Экспертная оценка рыночной стоимости квартиры
  Проверка «чистоты» истории квартиры
  Помощь в оформлении документов
  Консультации по ипотеке и содействие в получение кредита
  Помощь в приватизации
  Расселение коммунальных квартир


Как правильно выбрать квартиру на вторичном рынке.

Рынок вторичной недвижимости часто таит в себе опасности. Купив квартиру, до сих пор можно столкнуться с ситуацией, что на приобретенной жилплощади окажутся приписанными несовершеннолетние дети или недееспособные граждане. Чтобы не оказаться жертвой мошенников, и избежать других проблем и неоправданных затрат времени, следует воспользоваться услугами профессионального риэлторского агентства, такого как, например, «Русский Фонд Недвижимости». Специалисты компании помогут подобрать подходящий вариант и будут сопровождать сделку на всех этапах.

Этот сайт использует файлы cookie для улучшения пользовательского опыта. Cookie - это небольшие текстовые файлы, которые сохраняются на вашем устройстве и помогают нам запоминать ваши предпочтения, анализировать посещаемость сайта и предоставлять более персонализированный контент. Использование файлов cookie позволяет нам сделать сайт удобнее для вас. Политика конфиденциальности
Принять Отказаться